Общая информация
Почему в этом материале было принято решение рассмотреть проектирование дома именно размером 8х10? Все просто – именно этот вариант является одним из самых популярных, так как дома, построенные по таким проектам, отличаются компактностью, но при этом оказываются вместительными и удобными для проживания. Притом такие строения могут быть как одноэтажными, так и иметь второй этаж, мансарду, различные пристройки и так далее – все будет зависеть от пожеланий будущего владельца.
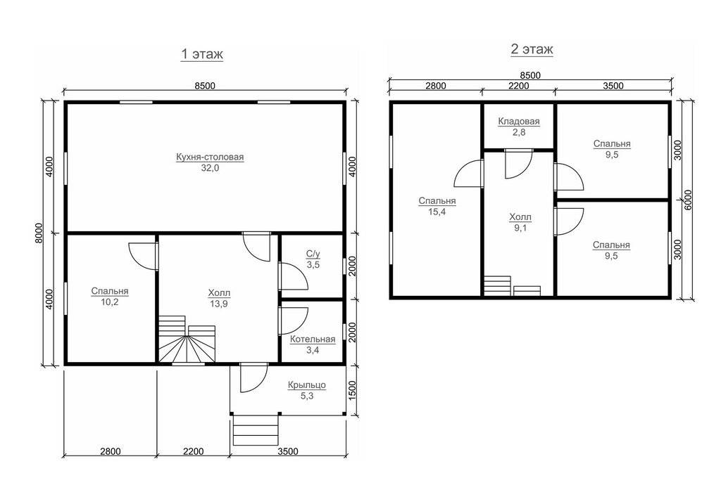
Проект дома 8х10 с отличной планировкой
Проект дома размером 8×10 м с мансардой
Многие, кто еще не сталкивался с проектированием и строительством, только лишь взглянув на дом 8х10, могут посчитать такой вариант жилища тесным и неуютным. Большинство, даже не разобравшись, могут сразу отмести этот вариант в сторону и остановиться на небольшом стандартном квадратном в проекции доме. И это будет в корне неверным решением. Прежде чем делать выводы относительно дома такого размера, стоит посетить подобные строения вживую и уже после этого решать, подойдет такой вариант или нет. Побывать в домах 8х10 можно на специальных выставочных площадках или же просто попросить соседей по участку, у кого есть такой дом, разрешить его посмотреть изнутри.
Жилой дом с мансардой размером 10 на 8 м позволяет комфортно разместиться семье из 4-5 человек
Кто-то может посчитать, что нет смысла делать прямоугольный дом, что будет достаточно и квадратного меньшей площади. Но на деле получается, что в доме 8х10 можно реализовать гораздо больше идей. Притом места такое строение на участке займет не так уж и много, так что это – один из лучших вариантов загородного жилья.
Планировка дома размера 8×10 м: пример дизайна
В доме 10х8 с полезной площадью 80 м2 прекрасно поместятся все необходимые помещения. Это и жилые комнаты, и кухня, и гостиная, и даже какие-то хозяйственные комнаты. Притом затраты на строительство такого дома будут гораздо меньше, чем при возведении большего по площади строения. Один этаж в таком доме будет представлять собой стандартную четырехкомнатную квартиру в многоквартирном доме. А если сделать дом двухэтажным, то площадь для проживания возрастет вдвое. Также не стоит забывать, что можно сделать балконы и лоджии, веранду и т. д, организовать цокольный этаж, сделать мансарду. Кстати, как раз все помещения хозяйственного назначения как раз могут переехать в цоколь, а в мансарде можно организовать просторную детскую комнату или уютную спальню. В любом случае, дом 8х10, хоть и не станет никогда огромным особняком, но вполне позволит разместить внутри себя столько комнат, что у каждого члена семьи будет свой личный уголок.
Дом 10 на 8 двухэтажный
Кстати, к преимуществам именно таких размеров дома можно отнести и то, что налог на собственность будет умеренным. Также не придется значительно усиливать конструкцию стен, что тоже позволит сэкономить средства.
Это интересно: Планировка дома 6 на 8м с мансардой — современные варианты оформления каркасного дома площадью 6х8, наиболее удачное планирование пространства
Возведение дома из пеноблоков
До недавних пор единственным строительным блоком, используемым в частном строительстве, был кирпич. И это неудивительно, ведь данный материал отличается небольшими размерами, легкостью в работе и рядом высоких технических характеристик. Однако с развитием строительного рынка появилось достаточно большое количество аналогичных материалов, среди которых наиболее популярными являются газоблоки и пеноблоки.
Пеноблок изготавливается из цементно-песчаного раствора, в который добавляется пенообразователь. Вследствие такой несложной технологии изготовления получается крепкий и легкий стройматериал, который относится к разряду ячеистых бетонов.
Рассмотрим несколько его основных преимуществ:
- Приемлемая цена.
- Небольшой вес, что является очень выгодным по двум причинам:
- Благодаря легкости блоков значительно упрощается процесс монтажа.
- Для таких построек не требуется массивный фундамент.
- Структура с закрытыми ячейками обеспечивает высокие водоотталкивающие характеристики материала.
- Пожаробезопасность.
- Неподверженность различным химическим или биологическим воздействиям (порча грызунами, гниение и т. д.).
Пеноблоки.
Выбор типа основания
Для того, чтобы дом 8 на 10 из пеноблоков был прочным и долговечным необходимо подобрать для него надежное основание. Суть в том, что какими бы прочными ни были стены строения, без качественного фундамента они быстро растрескаются и придут в негодность, что может привести и к обрушению здания.
На фото – столбчатое основание из блоков.
В наши дни устойчивой популярностью пользуются несколько видов фундамента. И каждый из них отличается определенными техническими характеристиками, которые следует учитывать при выборе того или иного основания.
Поэтому перед тем как выбрать фундамент, вам необходимо определиться в следующем:
- Произвести анализ грунтов, чтобы определить их качество. Состав и особенности почвы — это один из основных критериев при выборе основания, поскольку некоторые виды (в частности, столбчатый), недопустимо устанавливать на неустойчивых грунтах.
- Определиться с основным стройматериалом (кирпич, дерево, шлакоблок, пеноблок, газоблок и т. д.). В данном случае это шлакоблок, стены из которого не отличаются большой нагрузкой на фундамент, а потому подходят для любых типов оснований.
- Определиться с толщиной стен и размерами здания. Иными словами, у вас на руках должен быть план дома из пеноблоков 8 на 10.
- Этажность дома также влияет на выбор основания.
Теперь рассмотрим виды фундамента, которые используются для возведения частных домов:
- Ленточный. Является наиболее востребованным и универсальным. Способен выдерживать приличные нагрузки. Основным преимуществом данного вида является возможность обустройства подвального помещения. В отличие от монолитных оснований, которые располагаются под всей площадью постройки, бетонная лента устанавливается только под несущими стенами и прочими нагруженными элементами.
Ленточный фундамент.
Такие конструкции оптимальны как для легких каркасно-щитовых построек, так и для кирпичных домов в несколько этажей.
- Столбчатый (свайный) фундамент. Отличается простотой и быстротой возведения, однако имеет невысокую несущую нагрузку и срок службы не более 70 лет.
- Плитный. Как говорилось выше, представляет собой монолитную плиту, которая располагается под всей площадью здания. Наиболее массивный и надежный, но и самый дорогостоящий вид фундамента. Ввиду высокой стоимости, его обустройство рассматривается только в случае крайней необходимости.
Его предполагают только те проекты домов из пеноблоков 8 на 10, где есть необходимость возведения здания в болотистой местности.
Особенности кладки пеноблоков
Кладка пеноблоков.
Многие современные статьи, посвященные кладке пеноблоков, повествуют о сложности в проведении подобных работ ввиду множества особенностей. В действительности все гораздо проще, чем кажется.
Инструкция:
- Очищаем блок от пыли, грязи, снега и т. д.
- Первый ряд укладываем на идеально ровное основание. Швы между блоками (как горизонтальные, так и вертикальные) должны быть около 30 мм. При кладке второго и последующих рядов, толщину швов следует уменьшить до 15 мм.
- После кладки первого ряда, проверяем горизонтальность блока уровнем.
- Каждый третий ряд желательно армировать тонкой металлической сеткой, что придаст конструкции прочности.
- Перемычки между дверьми и окнами можно сделать самостоятельно. Для этого монтируется опалубка из деревянных досок, в которую закладывается армирующий каркас. После этого, заливаем опалубку бетоном.
Дом из пеноблоков.
Красивые примеры для вдохновения
На сегодняшний день дом 6 на 8 с мансардой является одним из самых популярных среди населения. Ведь если правильно организовать все зоны, то можно получить дом своей мечты. Вот несколько красивых примеров.


Первый вариант – светлое сооружение с тёмными деревянными балками. Дом с мансардой прекрасно вписывается в ландшафтный дизайн участка. В этом доме могла бы жить семья с детьми. Наличие перед входом в дом просторной террасы, позволит детям играть на ней в любое время года.
Первый этаж и мансарда, выполнены в едином стиле. Весь дом выстроен в стиле модерн – белые стены органично сочетаются с темной отделкой. Середина дома отделана коричневыми панелями, имитирующими натуральную древесину. К мансарде пристроен небольшой балкончик, белого цвета. Там можно устраивать чаепития и любоваться прилегающей территорией.

Второй пример представлен в более светлых тонах. Красивые колонны поддерживают большой балкон, сделанный из такого же материала. Крыша – более покатая. Поэтому на мансарде сможет разместиться только одна комната, например, гостевая. Весь участок выложен тротуарной плиткой. На нем есть место для парковки машины.
Подводя итог, можно сказать, что хорошо спланировав дом 6х8 м с мансардой, можно получить вполне эргономичное пространство, и сделать помещение тёплым и уютным.


Подробнее смотрите далее.
Проекты жилых построек с односкатной крышей
Какими могут быть дома с односкатной крышей? Проекты, фото предлагаются самые разные, каждый найдет для себя «золотую середину» – как для постоянного, так и сезонного проживания.
Небольшой дачный домик
Небольшой дом 6 на 6 с односкатной крышей, подходит для постоянного проживания семьи из 2-3 человек. Также можно использовать в качестве дачной постройки – планировку модно изменить без особых усилий.
Домик с пристроенной террасойИсточник pinterest.it

Планировка домика 6х8Источник kak-sdelat-kryshu.ru
Дом с просторной мансардой и гаражом
Бюджетный проект. Двухэтажный вариант, где нижняя площадь отдана под два гаража. За счет конструкции крыши, жилая часть расположена с более высокой стороны. Низкое пространство предназначено для кладовых, лестницы шкафов, ванной. За счет этого снижается общий объем, что влияет на понижение цены за отопление. Проект хорошо подходит в качестве загородного дома.
Проект современного дома с односкатной крышей и мансардойИсточник houzz.ru
Одноэтажный дом с панорамными окнами
Такой вид конструкции позволяет придать своему дому оригинальный и в то же время простой вид. В данном проекте важна высота крыши. За счет нее создается дополнительное чердачное помещение. Возможность сделать дополнительный навес над входом.
Проект небольшого дома с панорамными окнамиИсточник udec.ru
Просторный дом с террасой
Оригинальная постройка с использованием крыш разного уровня. Достаточно просторный дом с большой площадью остекления, что позволяет полноценно наполнять помещения солнечным светом. Для создания тени, крыша делается с большими свесами, которые частично закрывают и террасу. Подходит для круглогодичного проживания, используя как загородный коттедж.
Просторная терраса возле дома с односкатной крышейИсточник yandex.uz
Видео описание
Обзор еще нескольких проектов домов с односкатной крышей смотрите в следующем видеоролике:
Особенности планировки двухэтажного дома
Если вы остановили свой выбор на традиционном двухэтажном мансардном коттедже, то и функциональность каждого этажа будет банально простой.
Второй этаж – спальная зона, первый этаж – комнаты общего пользования. План дома также должен учитывать прямой доступ в комнаты, то есть смежных помещений в нем быть не должно. Готовая планировка дома 8х10 поможет предусмотреть фундамент не только под несущие, но и под разделительные стены.
На этом видео показано, как происходит строительство брусового дома 8х10.
Выбор формы коробки
Проще всего разработать планировку дома и с пользой задействовать каждый сантиметр внутреннего пространства в том случае, когда коробка здания имеет правильную геометрическую форму. То есть дом 8х10 с правильным прямоугольником в основании будет намного рациональней здания, дополненного эркерами, балконами, террасами и верандами. План здания с архитектурными изысками смотрится намного интереснее, но функциональнее остается первый классический вариант.
Архитектурные особенности также отразятся и на разработке плана внутренних помещений: интерьер, возможно, выиграет, но функциональность значительно снизится. Но если вопрос цены и практичности не стоит на первом месте, то можно смело экспериментировать с формами, в погоне за индивидуальностью и необычностью.
Пример необычной формы дома
Варианты расширения пространства
Дом 8х10 подарит своим владельцам около 80 квадратных метров полезной отапливаемой площади. Это в том случае, если план дома не включает в эти размеры балкон, неотапливаемую веранду и крыльцо. Это больше, чем стандартная городская квартира. Однако пространство в своем доме воспринимается совершенно иначе, чем в многоэтажках. Поэтому имеющейся территории может показаться мало.
Значительно увеличить площадь, но немного выйти за рамки бюджета, отведенного на постройку одноэтажного дома, можно с помощью возведения дополнительных этажей. Это могут быть:
- цокольный этаж;
- мансардный этаж;
- полноценный второй этаж.
Любое из решений позволит увеличить имеющуюся площадь почти в два раза. Однако рассматривать возможность строительства каждого из них нужно отдельно в каждой конкретной ситуации.
Цокольный этаж в доме
Позволит спустить вниз все подсобные помещения. Здесь можно обустроить кладовую и зону хранения. Сюда же спускается прачечная, устанавливается шумная бытовая техника, с первого этажа в цоколь переносится котельная. Появляется возможность использовать нижний отапливаемый уровень для организации дополнительных помещений, освобождая тем самым площадь на первом уровне.
Мансардный этаж
Позволит разделить дом на две зоны – дневную и ночную. Первый этаж полностью приспособить под помещения общего пользования и хозяйственную зону. А на мансарду перенести все спальни и личные комнаты домочадцев. Правда, увеличение жилой площади почти в два раза потребует установки межэтажной лестницы, и возможно, второго санузла наверху.
Полноценный второй этаж
С его появлением в доме наверху можно обустроить не только спальни и детские, но и подумать о полноценном рабочем кабинете и даже библиотеке. Также наверху получится сделать просторную гардеробную, что разгрузит личные комнаты и гостевую зону. Второй санузел также будет необходим.
Подробный план второго этажа дома 10х8
Загородный дом с размерами 8х10 вполне пригоден как для дачного отдыха, так и для постоянного проживания. Нужно лишь правильно подобрать соответствующую планировку. Согласно исследованиям, для комфортного проживания семьи из 4-5 человек достаточно 110-120 квадратных метров площади. Все, что свыше этого показателя – улучшение жилищных условий и обустройство дополнительных помещений.
Современные проекты домов 8 на 8
Варианты, которые можно встретить в каталогах готовых проектов, имеют несколько схожих характеристик: количество жилых комнат — 4—5, полезная площадь — более 100 кв. м, наличие террасы. Имеются варианты с цокольным этажом, мансардой. Один из классических проектов дома 8 на 8 м предусматривает наличие маленькой квадратной прихожей, которая выходит в коридорчик с лестницей на второй этаж. Рядом со входной дверью предусмотрен санузел. Напротив ступенек располагается большая длинная гостиная (около 27 кв. м). Она переходит в кухню в дальней от входа стороне здания. На втором этаже — две спальные комнаты. Другие популярные варианты предусматривают отсутствие длинных помещений, лестницу прямо в гостиной, одну/две спальни на разных или только на втором этаже. Отличительной чертой современных проектов домов является большая общая площадь оконных проемов и короткие коридоры.

ПРОЕКТ «ДАЛИЯ»
Продуманная планировка этого дома с мансардой позволила на относительно небольшой площади разместить массу нужных помещений, при этом все организовано настолько грамотно, что каждому жильцу будет очень комфортно.
К преимуществам отнесем:
- проект подойдет для узких участков;
- кухня и гостиная разделены, чем проект отличается от массы подобных. Запахи от готовящихся блюд не будут мешать отдыхающим в гостиной;
- гостиная с камином имеет выход на террасу. Если последнюю дополнить бассейном, как предлагает автор проекта, получится шикарно, но и без бассейна можно организовать крутую зону отдыха;
- есть место для котельной, а также небольшое подсобное помещение рядом с кухней (подойдет для организации прачечной или кладовой);
- на мансардном этаже три спальни, одна из которых оснащена собственным санузлом и гардеробной. Также в наличии общая ванная, а третий санузел расположился на первом этаже;
- общая площадь дома 94 кв.м.
Особенности домов 8 на 8
По общей площади помещений такие дома можно сравнить с большими трех-, четырех- и пятикомнатными квартирами. При грамотной планировке внутреннее пространство будет еще больше. В постройке 8 на 8 найдется место для нескольких санузлов, двух спален, большой гостиной и кухни/столовой. При строительстве такого жилья нужно позаботиться о прочности основания. Крепкий фундамент позволит достраивать этажи. Люди часто возводят дом в бюджетном варианте и потом желают превратить его в большой и дорогой особняк. Проектирование зданий 8 на 8 м характеризуется однотипностью: первый этаж отводится под гостиную, прихожую, ванную и кухню, второй — под одну-две спальни. Чердак же переделывают и используют в качестве еще одной комнаты или мансарды. Выиграть место можно за счет совмещения некоторых помещений. Зал часто объединяют с кухней, одновременно улучшая дизайн этих двух комнат.
Дистанция между соседними домами
- Гараж должен стоять на расстоянии десяти метров от соседнего дома.
- Хозблоки и сараи строить нужно за метр от забора.
- Если на дачном участке будут находиться птицы или животные, курятники, хлев или свинарник ставится за четыре метра от соседей.
- Высокие деревья нужно сажать за три метра до соседних построек.
- Средние — за два метра, кусты за один.

Расположение дома на 5 сотках задача не из легких, так как это достаточно небольшая территория. Поставить дом здесь лучше на северной стороне, особенно если вы собираетесь заняться огородничеством. Овощи любят солнце и развиваются под ним быстрее. Рационально разместить дом на 10 сотках проще, остается достаточно места для бани, летней кухни, каких-то других помещений. Если хорошо спланировать, то на даче будет все необходимое для удобного отдыха. Такие участки сейчас наиболее популярны. Для 15 соток не нужно будет долго продумывать размещение каждого строения. Здесь достаточно места и при разумном плане, на участке сохранится простор.
Если земельный участок достаточно широкий, жилище лучше разместить с края. Верным решением будет обустроить два выхода: на улицу и во двор. Если участок не ровный и имеет холмистость, особняк лучше ставить на возвышении. Фасад у дома должен быть красивым и лучше развернуть его на улицу, а не во двор. Забор делают глухим только перед въездом, между соседними участками обычно ставят сетку-рабицу. Скат крыши не должен быть направлен на соседнюю территорию, иначе вся вода от дождей или талых снегов будет попадать туда. Ни одному человеку это не понравится и могут возникнуть конфликты.
Дома 6х8 по каркасной технологии
Каркасные дома 6х8 возводятся довольно быстро, обычно срок не превышает 1,5-2 месяца. Могут использоваться как для временного проживания, так и на постоянной основе.
Постройка каркасных домов имеет некоторые особенности, которые учитываются в процессе работы. Основой дома является легкий деревянный каркас, в большинстве случаев материалом отделки выступает сайдинг или вагонка.
Строительство выполняется в несколько этапов:
- разработка проекта;
- выбор строительных материалов, покупка и транспортировка;
- заливка фундамента;
- строительство стен, перекрытий, чернового пола;
- выполнение кровельных работ;
- вставка окон и дверей;
- отделка.
Особенности проектов дачных домов с мансардой
Подбирая для дома с мансардой фото и проекты различных вариантов, следует учитывать, что у такого решения есть как преимущества, так и недостатки. Первых больше, благодаря чему мансардный этаж пользуется большой популярностью. Однако не стоит забывать и о минусах, особенно заметных, если пространства в нижней части здания достаточно для проживающих в нём людей.
Плюсы домов с мансардным этажом
К преимуществам здания с мансардой можно отнести:
- увеличение пространства в доме. Так, для размеров в плане 6 на 8 м мансардный этаж позволит получить уже не 48 кв. м площади, а от 70 до 80;
- возможность её использования только в летнее время. Так, даже проекты дачных домов с мансардой и верандой обеспечат на этой площади хранения вещей зимой и дополнительное место для отдыха (или творчества) летом;
Неутеплённая мансарда
Нельзя не отметить и эстетические характеристики такого проектного решения. С помощью мансарды улучшается внешний вид всего здания. А изнутри помещение смотрится оригинальнее обычной комнаты – за счёт наклонного потолка и практически полного отсутствия стен.
Недостатки варианта
К минусам мансарды, стоит отнести изменения в конструкции, которые требуются при выборе этого варианта:
Санузел на мансардном этаже
Определённые сложности возникают и при оформлении интерьера мансардных этажей. Тем более что наклонные стены могут быть не только плюсом, но и минусом. Они не позволяют расставить вдоль них мебель, наклеить обои или выполнить большинство других видов отделки. А некоторые психологи утверждают, что проживание в комнатах с расположенным под углом потолком вызывает ощущение дискомфорта.
Проектирование
Главное условие при строительстве дома 8 на 12 — это проект. Он даст возможность:
- правильно рассчитать нагрузки;
- поместить здание на участке, соблюдая отступы от границ и противопожарные разрывы;
- продумать планировку жилых комнат и вспомогательных помещений;
- изначально рассчитать количество и стоимость материалов, тогда стройка не превратится в долгострой;
- получить разрешение на начало строительства.
Для небольшого участка уместным будет спроектировать двухэтажное здание или разработать проект дома 8 на 12 с мансардой. Если двухэтажное строение потребует мощный фундамент, то для строения с легкой мансардой будет достаточно обычного основания под одноэтажный коттедж. Крыша в таком здании, как правило, по проекту двухскатная.
Особого внимания требует внутренняя планировка. Здесь должна разместиться гостиная и спальня, кухня и ванная, детская и подсобные помещения
При выборе планировки важно учитывать:
- Расположение санузлов. Вход в туалет или ванную не должен осуществляться из кухни или гостиной.
- Лестница. В двухэтажном коттедже 8 на 12 или доме с жилой мансардой необходимо установить лестницу на второй уровень. Оптимальный размер ступеней по ширине 260 мм, по высоте 180 мм. Общая площадь, занимаемая лестницей 7 м2.
- Котельная. Если дом предназначен для постоянного проживания, то в планировке нужно предусмотреть помещение, площадью не менее 15 м3, для установки отопительного котла.
- Фасад. Если дом 8 на 12 находится в черте города, то нужно предварительно согласовывать план фасада и планировку помещений в местной администрации.
Особенности
Дом 6 на 8 с мансардным этажом выглядит достаточно компактно. Тем не менее, внутри можно устроить многофункциональные комнаты, в которых удобно разместятся все. Или же пространство можно оставить открытым. Последний вариант подойдет для двоих.
Строительство дома 6х8 существенно сэкономит пространство на небольшом участке. Небольшие дома дешевле построить, особенно, если выбрать каркасный вид строения. При наличии финансов можно выбрать аналогичные строения из кирпича, сибита или древесины.

Особенности дома с мансардой 6х8 позволяют воплотить комфортабельные условия как для временного, так и для постоянного нахождения, при этом не требуя финансовых трат на эксплуатацию.
Сооружение позволит расположиться ячейке общества из 3-5 человек. Мансардный этаж успешно компенсирует недостающее пространство.
При этом дом с мансардной настройкой может быть как одноэтажным, так и двухэтажным. Бюджетный вариант конструкции, конечно, – одноэтажный. Одноэтажные строения не только привлекательны на вид, но и обладают рядом положительных качеств, среди которых – возможность обустройства легкого основания.

Дом с мансардной настройкой может быть одноэтажным, ведь мансарда – это дополнительное пространство, которое устраивается на чердаке. Обычно оно находится под крышей, которая бывает скатной или наклоненной.
Правильно обустроенная мансарда улучшает внешние характеристики жилья, придавая ему дополнительную привлекательность. Пристроенное на чердаке помещение не считается вторым этажом.
Мансарду можно оборудовать под дополнительную комнату или для хозяйственных целей. В комнате обустраиваются спальни, детские. Часто устанавливается бильярдный или теннисный стол, а также тренажеры. Если владелец такого домика – творческая личность, то пригодится студия или библиотека. Вариантов множество.

Проект дома с мансардной настройкой можно создать самому, заказать специалистам или выбрать готовый вариант.
За личный проект стоит браться при наличии хорошего воображения и вкуса. Составление личного проекта с помощью специалистов – достаточно дорогостоящая услуга. Этой работой занимаются специальные организации по жилищному и строительному вопросу. Конечный результат во многом зависит от квалификации сотрудников таких предприятий.
Часто рекомендуемый и качественный метод – приобретение готового типового плана. Преимущества здесь следующие:

- стоимость типового проекта меньшая, чем нового;
- экономия времени, которая позволяет ускорить процесс начала строительства;
- большое количество готовых проектов: вы всегда сможете выбрать подходящий с учетом индивидуальных особенностей;
- в чертежи всегда можно внести коррективы.
Но при этом проект должен соответствовать не только пожеланиям заказчика, но и строительным показателям и нормам.
Наружное оформление домов
Небольшой дом 6х8 будет отлично смотреться в любом стиле. При выборе материалов для наружной отделки следует учитывать особенности, общий дизайн участка. Лаконичная современная постройка дополнит стиль престижного коттеджного поселка, домик кантри будет преображаться рядом с вековыми дубами на фоне величественных гор.

Фасадные работы проводят не только для повышения эстетичности, но и для продления срока службы строения. В качестве отделочных материалов используют:
- Декоративную штукатурку;
- Облицовочный кирпич, искусственный камень;
- Вагонку, блок-хаус;
- Виниловый сайдинг.




































