Создание проекта и деталировка
Чтобы сделать шкаф-купе своими руками, чертеж должен быть составлен грамотно, с учетом мельчайших деталей конструкции — это еще один из важнейших этапов. Справиться с задачей можно с использованием компьютерных программ либо самостоятельно вручную. Кроме того, проекты могут быть созданы с нуля или на основе схемы, найденной на тематических ресурсах. Для адаптации чертежа к необходимым размерам можно воспользоваться многочисленными специальными калькуляторами в онлайн-режиме.
Важно определиться с типом конструкции, шкаф может быть:
- корпусным (его можно расположить в углу либо вдоль стены);
- встроенным (его помещают в нишу либо часть узкой комнаты).
Корпусный шкаф
Встроенный
Также важно определиться с размерами и формой будущего шкафа, решить, требуется ли место для дополнительного оборудования. Кроме того, следует продумать количество секций изделия — как правило, стараются выделить персональное отделение для каждого члена семьи
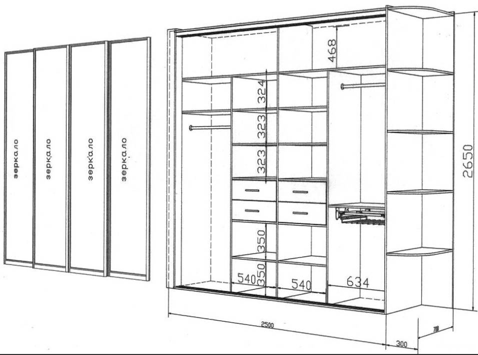
Схема стандартного наполнения шкафа для одного человека обычно включает в себя несколько полочек, штангу для плечиков под одежду, пару выдвижных ящиков.
При проекте внутренней комплектации важно учесть фактические и рабочие габариты изделия:
- толщину полочек и панели корпуса;
- место, которое занято системой направляющих;
- рабочую глубину полок;
- высоту крепления вешалок;
- наличие статичных и выдвижных секций.
Необходимо проанализировать и расположение изделия (угловое либо прямое), поскольку могут образоваться труднодоступные зоны (они будут неудобны при эксплуатации)
Важно учесть этот нюанс и обустроить там место для хранения вещей, которыми пользуются редко, либо можно модифицировать этот участок внутренним наполнением, чтобы его использование было максимально функциональным. Не стоит делать полки шкафа чрезмерно глубокими, они не должны превышать длину вытянутой руки
После того как предварительный чертеж шкафа подготовлен, рекомендовано передать его на проверку проектировщику. Специалист проанализирует данные с помощью компьютерной программы и выявит возможные огрехи. Такой нехитрый прием поможет избежать крупных затрат.
Для деталировки чертеж переносят поэтапно на плотную бумагу. Затем их размечают на материале, при этом обязательно используют линейки и уровень
Важно сделать все максимально точно. После того как изображение полностью перенесено, можно начинать выпиливание
Есть возможность сделать автоматическую деталировку посредством компьютерной программы. Не стоит опасаться подобных сервисов, во многих из них простой, доступный интерфейс. Для подсчета необходимого количества деталей надо ориентироваться на общий чертеж изделия.
Встроенный шкаф-купе
Корпусный шкаф-купе
Встроенные гардеробные шкафы
Купе, комоды, стенки – все это можно покупать готовым или делать на заказ, исходя из ваших индивидуальных размеров. А вот встроенные гардеробные шкафы этой альтернативы лишены – они вписываются в уже готовое пространство только индивидуально, потому что в таком виде от одной до нескольких стенок просто напросто отсутствуют. Благодаря сооружению таких перегородок в нишах, зонах, которые остались свободными после перепланировки и сноса стен, вы можете получить площадь, достаточно большую для того, чтобы соорудить полноценную гардеробную в хрущевке или подобной маленькой квартире.

Вы можете сделать гардеробную из кладовки, если выкинете весь хлам и закажете сборщикам мебели сделать встроенный гардеробный шкаф. В этом случае не будет ни одной боковой стены, также не будет задней стенки, а будут только двери, причем пространства должно быть достаточно, чтобы вы могли зайти в новое помещение и достаточно комфортно там развернуться. Если же вы сооружаете встроенный гардероб не на всю стену, то можно ограничиться одной стенкой из дерева, а заднюю поверхность и вторую боковину заменить углом комнаты.

Для отделки внутренней поверхности такой гардеробной своими руками нужно избегать стен и потолка, отделанных штукатуркой, шпаклевкой или бумажными обоями. Эти материалы могут и создавать пыль, и хорошо накапливать ее, а в хранилище одежды такого добра будет хватать. Прекрасным решением будет покрытие стен краской, за ними будет и удобно ухаживать, мыть и чистить. Если такое решение кажется вам не слишком эстетичным, то можете облицевать заднюю поверхность пластиковыми панелями под цвет основного материала шкафа.

Угловой гардеробный шкаф
Вписать в план комнаты отлично можно угловой гардеробный шкаф. Он может быть не только местом хранения вещей, но и приемом для зонирования пространства. Причем угол этот может быть как внутренним, так и внешним.

Если у вас широкий коридор, из которого есть выходы в две комнаты, например, прихожую-кухню, то вы можете разместить в угловом шкафу гардеробную с раздвижными дверями. Это не будет купе, то есть движение будет не по всей длине, а только до угла. Если же вы хотите, чтобы он открывался именно на всю длину, тогда вам нужны будут радиальные конструкции, которые выполняются под заказ разных конфигураций.

Гардероб с внутренним углом очень похож на привычные советские (а, вернее, стран Варшавского договора) стенки. Это достаточно удачное решение проблемы небольшой спальни, в нем можно разместить и полки для мелочей, и одежные органайзеры, и даже туалетный столик. Конечно, для того чтобы выбранная конфигурация максимально соответствовала именно вашим потребностям, нужно заказать индивидуальный проект и сборку по индивидуальным размерам.
Как сделать шкаф-купе своими руками: чертежи и этапы устройства
Можно сделать гарнитур самостоятельно, но для этого потребуются знания об особенностях проектирования. Шкафы-купе не так легко изготовить своими руками даже если есть описание, чертежи и пошаговая инструкция. Но не спешите расстраиваться. Рассмотрим все тонкости рабочего процесса.
Замеры помещения и расчёт размеров встроенного шкафа-купе своими руками
Особенно важно выполнить точные замеры. Сначала эскиз лучше набросать на бумаге, а на нем отметить все размеры
Выполнить проектирование и расчет дверей-купе поможет программа «Аристо».
Варианты размещения и размеров мебельной конструкции
Необходимо выполнить следующие измерения:
выполняются замеры на расстоянии 15÷20 см от задней стены;
на расстоянии 30 см от первых замеров выполняются вторые;
нужно измерить расстояния до выступов, дверных проемов и розеток;
важно измерить расстояние от пола и до потолка;
выполняются расчеты габаритов шкафа;
из всех полученных значений стоит выбрать наименьшее. Это позволит вычислить ширину будущей конструкции;
необходимо учитывать и значение погрешности, на которую оказывает влияние кривизна стен, количество точек замеров и устройство шкафа.. Варианты встроенных моделей
Варианты встроенных моделей
Чтобы рассчитать глубину шкафа необходимо вычислить полезное пространство, а также учесть максимально допустимые размеры. 100 мм нужно учитывать при планировании раздвижной системы для шкафов купе. Высота мебели должна быть на 100 мм меньше, чем расстояние от пола до потолка.
Чертеж встроенного гарнитура
Распил и фурнитура
Перед тем, как самому сделать шкаф-купе, сначала нужно написать перечень всех деталей на листке. Со списком можно обратиться в цех, где сделают раскрой и порежут материал. Сделать распил можно и самостоятельно, но это более сложный вариант. Необходимо разложить детали и рассчитать количество листов ЛДСП.
Важно подобрать качественную фурнитуру, от этого зависит правильная регулировка дверей шкафа-купе. Двери не должны заклинивать и съезжать
Системы скольжения состоят из профиля и скользящей опоры. Роликовые механизмы могут быть осевыми или на подшипниках.
Комплектующие для шкафа-купе
Выбор наполнения шкафа
Внутреннее наполнение помогает решить и какой будет компоновка. Не стоит секцию для верхней одежды размещать по центру, так как влага от нее может распространиться в стороны. Лучше расположить этот отсек сбоку. Ящики для постельного белья не рекомендуется размещать сразу над полом.
Вариант наполнения конструкции
Как правильно скомпоновать элементы и как собрать шкаф-купе своими руками можно посмотреть в видео ниже:
Watch this video on YouTube
Количество и размеры дверей, направляющие, ролики для шкафа-купе
Выбирая направляющие для шкафа-купе, особое внимание уделите материалу их изготовления. Самую низкую стоимость имеет пластиковый профиль, но он отличается небольшой надежностью и малым сроком службы
Лучшим решением будет использование комбинированных рельсовых направляющих, в которых опорная поверхность для роликов из металла.
Самодельные ролики
Стальной профиль для дверей-купе обладает повышенной надежностью. Из алюминия делаются рельсовые опоры для мебели известных брендов.
При планировании дверей нужно рассчитать ширину створок. При этом в закрытом состоянии должна быть видна одна ручка, но она не должна закрывать дверное полотно.
Варианты профилей
Ролики делают из металла, так как пластик не отличается прочностью. Ролик содержит шарикоподшипниковый внутренний механизм, позволяющий свободно перемещать двери в горизонтальном направлении.
Сборка шкафа и двери купе своими руками
Предлагаем вам ознакомиться с процессом сборки шкафа-купе своими руками в таблице ниже:
| Фото | Описание работ |
| Чтобы выполнить сборку шкафа-купе необходимо нанести разметку. Нужно отметить габариты шкафа по ширине и место расположения вертикальной стойки. Отмечаются высоты, на которых будут фиксироваться полки. | |
| Сверлим отверстия для дюбелей. | |
| Профиль надевается перед монтажом. | |
| Устанавливаем вертикальную стойку. | |
| Наносим разметку для антресольной полки и устанавливаем её. | |
| Устанавливается боковая стенка. | |
| Выполняется разметка под полки и их установка. | |
| Размечается по размеру и устанавливается штанга для одежды. | |
| Устанавливаются фальш-панели. | |
| Одна панель фиксируется в нижней части. | |
| Крепится опорная верхняя часть. | |
| С помощью шурупа фиксируется нижняя направляющая. | |
| Аналогично крепится и верхняя направляющая. | |
| Монтируются двери. |
Более наглядно процесс представлен в этом видеоролике:
Watch this video on YouTube
Монтаж двери
Справа и слева закрепляются фальш-панели. Их глубина составляет 80-100 мм. Они будут создавать видимость боковых стенок. Панели фиксируются к полу, стенам и потолку. В качестве крепежа используются саморезы, длина которых не меньше 45 мм. Расстояние между элементами – 400 мм. Далее устанавливаются направляющие. Верхняя и нижняя имеют разницу в глубине. У последней она меньше примерно на 16 мм. Поэтому верхний элемент фиксируется по краю панели, а нижний – глубже на 8 мм. Далее нужно вставить дверь. Полотно приподнимается так, чтобы край вошел в верхнюю направляющую. Затем нижние ролики вдавливаются и опускаются в нижнюю колею.
Основные этапы сборки
Перед началом сборки нужно внимательно осмотреть все приготовленные детали и инструменты, чтобы убедиться, что ничего не забыто. Следует подготовить место, начертить схему, узнать, как правильно выполнять работы.
Цоколь
Любая инструкция о том, как собрать шкафы-купе самому, вычислить расположение деталей, начинается с подготовки прочного ровного основания, то есть дна будущего шкафа. Эту составную часть часто называют цоколем, закрепляют с помощью специальных крепежных элементов — конфирматов или еврошурупов.
Инструкция по сборке цоколя:
- Сделать разметку (так как сборка шкафа должна осуществляться на специально отведенное место на полу).
- По отметкам просверлить четыре или больше отверстий.
- Перевернув днище в удобное положение, установить планки, прикрутить их саморезами.
Кстати, чтобы узнать, как грамотно самостоятельно собрать шкаф-купе и понять, правильные ли места были выбраны для карандашных обозначений для креплений, нужно измерить диагонали между ними — они должны быть одинаковыми. При использовании специальных ножек после вкручивания нужно отрегулировать их высоту, уровень.
Если шкаф-купе — стационарный, для плотного прилегания к стене помещения понадобится разборка части плинтуса. Возможно, проще вообще демонтировать его.
Корпус
Схема сборки шкафов-купе на втором этапе предполагает:
- Сверление отверстий для установки боковых стенок (так как они будут удерживать полочки и верхнюю часть мебели, выполнять тем самым роль ребер жесткости). Следует просверлить достаточное количество отверстий в дне.
- Затем нужно вставить в отверстия анкера.
- Проверить крепость деталей в собранном состоянии.
Обзор современных шкафов-купе, классификация моделей, советы по выбору
В зависимости от используемых для корпуса шкафа-купе материалов следует применить необходимое, но и не избыточное количество креплений. Это могут быть еврошурупы. Частота установки крепления для корпуса купе-конструкции может быть рекомендована в прилагающейся инструкции. Обычно она зависит от характеристик используемого для дверей такого шкафа материала. Также немалую роль для дальнейшей эксплуатации играет покрытие, которое может быть шпонированным или ламинированным.
Установка задней стенки
Согласно инструкции по сборке шкафа-купе, присоединение задней стенки производится разными креплениями. Выбор среди вбиваемых или вкручиваемых крепежей не может быть принят без четкого анализа толщины и других характеристик задней стенки.
При осуществлении выбора закрепляющих расходных материалов для стенки шкафа нужно помнить, что неопрятный вид или недостаточно сильные крепления недопустимы. Если установка полок в шкаф-купе будет стационарной, это послужит дополнительным укреплением основы капитальной мебели для хранения вещей.
Для съемных полок в купе-шкафах делают лишь пазы или другие некапитальные крепления, что помогает держаться аккуратным небольшим полочкам, сделанным по внутренней форме собираемого изделия (в противном случае крепежей будет слишком много).
Крепление полок и направляющих
Правильно собрать шкаф купе — значит, не только позаботиться о его внешнем виде, но и удобно установить полочки в выдвижные элементы.
Виды, размеры и дизайн радиусных шкафов-купе, советы по размещению
Инструкция:
- Взять измерительные приборы (линейку и карандаш).
- Отмерить центр полки сначала на переборках с внутренней стороны шкафа.
- Полученные измерения в виде отметок перенести на место сверления посредством тех же приспособлений (линейки, ручки, маркера, карандаш и т.д.)
Сборка своими руками шкафа купе — процесс трудоемкий. Важны все детали. Если речь идет о направляющих пазах для выдвижных ящичков, они обязательно должны соответствовать аналогичным креплениям на ящиках и двигающихся полках. Для правильной установки полок следует придерживаться простого правила: чтобы обеспечить сохранность всех частей шкафа, нужно сделать точный замер места прикручивания полок. Тогда сборка удастся.
Монтаж дверей
Створки шкафа могут крепиться как на верхние, так и на нижние колесики (ролики). Действовать нужно аккуратно, учитывая правила скрытого метода монтажа. При этом всегда следует контролировать толщину просверливаемой для крепления стенки шкафа.
Умение разобрать и собрать шкафы купе, получаемое в результате самостоятельной сборки, позволяет не ошибаться при установке самой важной детали — раздвижных створок. Опытного и аккуратного сборщика мебели отличает способность правильно отмерить нужные расстояния при монтаже мебели
Это в свою очередь определяет внешний вид, а также пользовательские характеристики важного элемента интерьера.
Угловой шкаф купе
Ниже представлена самая простая модель такой разновидности шкафа.
Как сделать угловой шкаф-купе
Угловой шкаф купе, это очень популярная модель мебели, особенно для малогабаритных квартир. Существует тысячи вариантов, в чем вы наверно уже убедились, просматривая фотографии в интернете.
Здесь представлен относительно простой пример, как сделать угловой шкаф купе своими руками.
По сути это обычные полки треугольной формы в углу комнаты, закрытые раздвижными дверцами.
Универсальная конструкция для любого помещения, можно использовать в качестве шкафчика для инструментов, как в данном случае, так и для других целей. Все зависит от размеров и внутреннего оборудования. Если сделать объем побольше, получится отличный шкаф купе для белья, обуви, одежды, да чего угодно.
Как сделать этот шкафчик, можно прочитать в подробной инструкции на сайте автора.
Пошаговые фото собраны в небольшом коллаже.
40 чертежей: угловой шкаф-купе
Смотрите всю коллекцию чертежей (+ пошаговые фото изготовления) в этой статье https://novamett.ru/shkaf/uglovoj-shkaf-kupe
240 фото: угловой шкаф-купе
Смотрите всю коллекцию чертежей (+ пошаговые фото изготовления) в этой статье https://novamett.ru/shkaf/uglovoj-shkaf-kupe
Подготовка деталей к сборке, засверловка
С помощью специальных мебельных программ можно составить спецификации на засверловку деталей для последующей сборки.

Это во многом облегчает процесс, делает его более точным и аккуратным. Сделать разметку под крепеж можно и вручную. Главное иметь пространственное представление.
Процесс засверловки деталей еще называют «присадка».
Под конфирмат нужно отверстие «в пасть» диаметром 8 мм с лицевой части детали и отверстие «в торец» диаметром 5 мм. Под шкант, как скрытый крепеж, засверловка «в пасть» делается с внутренней стороны и диаметром 5 мм. Эксцентриковая стяжка также имеет свои нюансы в разметке.
Размечаются и места крепления петель, направляющих ящиков и других механизмов, засверливаются отверстия под полкодержатели.
Сборка шкафа
На этом этапе мастеру-дилетанту понадобится определенный инструментальный набор, в который входят:
- дрель и несколько сверл к ней различного диаметра;
- отвертка;
- нож;
- и утюг.
Собирать же шкаф нужно, придерживаясь определенного алгоритма в действиях:
- Еще раз внимательно разобраться чертежах.
- Проверить правильно ли разложены детали: какая от чего и к каким примыкает.
- Подобрать нужного диаметра сверло для оформления отверстий под комформаты.
- Наметить отверстия и просверлить их, используя дрель. Отверстия нужно делать обязательно аккуратными, симметричными, чтобы не испортить внешний вид будущего предмета меблировки.
- Действуя отверткой надо будет собрать каркас шкафа на комформаты.
В дальнейшем, при обычной (то есть распашной) системе, двери шкафа необходимо будет укрепить с помощью навесов. А если речь идет о дверях-купе, прикрутить направляющие.
Следующий этап — нанесение разметки под полкодержатели и направляющие в тех местах, где будут располагаться полки и ящики. При нанесении потребуется максимальная точность, чтобы в будущем и полки стояли, и ящики двигались строго параллельно, а не вкривь-вкось.
Когда разметка нанесена, остается просверлить нужные отверстия и прикрутить полкодержатели и направляющие.
На завершающем этапе сборки шкаф доводится до визуального совершенства в рамках проекта. По швам ДСП необходимо будет сделать кромку. А для этого «вооружиться» утюгом и тонким полотенцем без ворса и махрушек, из натуральной ткани. Кромку нужно будет аккуратно приложить к плите ДСП и через полотенце утюгом проклеить. Потом острым ножом просто взять и обрезать лишнее с края.
В самом конце на комформаты надо надеть заглушки. И прекрасный закрытый шкаф, выполненный своими руками, готов. Можно дополнить его подсветкой изнутри или даже встроенными светильниками, а также зеркалом на двери/дверях и прочими визуально привлекательными и в то же время функциональными деталями.
Где можно купить и как правильно выбрать шкаф
Верный выбор и покупка шкафа купе определяются несколькими факторами. Придерживайтесь рекомендаций профессионалов, чтобы мебель решала все поставленные задачи для вашей семьи.

Сегодня есть специальные программы для создания шкафа.
- Тренды мебельного мира. С каждым годом появляются новые решения, оригинальные дизайны, более устойчивые конструкции. Интересуйтесь новинками, которые значительно упрощают жизнь, как в выборе нового купе, так и создания его с нуля.
- Учитывайте уникальность вашего помещения, расположение отопительной системы, окон, дверей. Шкаф должен решать ваши задачи, а не ставить новые.
- Подходящий тип конструкции купе важен для удобства дальнейшей эксплуатации. Полувстроенные шкафы, например, могут выступать в роли разделяющей стены, когда из одной большой комнаты получается две.
- Выберите комфортный тип механизма раскрытия дверей. Раздвижной при помощи роликов удобен в спальнях и гостиных. Подвесной тип без нижних направляющих чаще используют в детских, чтобы ребенок не спотыкался и не наступал, когда хочет достать вещь.
- Не экономьте на качестве материалов. Хороший шкаф служит десятилетиями.

Вычисляя ширину фасада, не стоит забывать о кромке, которая будет впоследствии наклеена по периметру.
Онлайн-конструкторы
Ключевое преимущество таких приложений – их не нужно устанавливать на компьютер. Сервис работает непосредственно в браузере. После завершения проектирования пользователь сможет скачать файл с чертежами мебели и осуществленными расчетами. Без интернета онлайн-конструкторы не работают, но во многих подобных сервисах предусмотрено автоматическое сохранение изменений, произошедших в проекте. Подобный функционал доступен только для авторизованных пользователей.
Bplanner
Данный сервис предназначен для виртуального конструирования кухонь и шкафов-купе. Демо-версией этого конструктора можно воспользоваться бесплатно, но для доступа к полному функционалу приложения придется заплатить. Пользователь также может установить приложение Bplanner на компьютер.
Демо-конструктор кухонь доступен по адресу https://bplanner.me/demo-versija-onlajn-konstruktora-kuhni-bplanner/. Готовые кухонные модули в демонстрационной версии конструктора отсутствуют. Пользователю придется самостоятельно сконструировать все шкафы.
У конструктора шкафов похожий функционал. Он доступен по адресу https://bplanner.me/demo-versija-onlajn-konstruktora-shkafov-kupe-bplanner/.
В общей сложности доступно 7 различных тарифов. Есть бессрочная лицензия для приложения, устанавливаемого на ПК.
Pax3d
Данный бесплатный сервис разработан компанией IKEA. Он доступен по адресу https://www.ikea.com/addon-app/storageone/pax/web/latest/?range=pax&uiPlatform=web&locale=ru-RU#/planner.
Этот онлайн-конструктор позволяет спроектировать гардероб из серии ПАКС и сразу же заказать комплектующие для его сборки на официальном сайте IKEA.
Сервис удобный, интуитивно-понятный. Встроенные подсказки помогут пользователю быстро разобраться в доступном функционале. Pax3d синхронизирован со складскими базами данных ИКЕА. Если пользователь попытается использовать для своего проекта отсутствующие детали, информация об этом практически моментально отобразиться в конструкторе.
Prodboard
Простой конструктор кухонных гарнитуров и шкафов. Подойдет для пользователей, которые совсем не знакомы с проектированием мебели. Доступен по адресу https://prodboard.com/3d-конструктор-шкафов-купе/.
Пользователь может выбрать один из шкафов по умолчанию. В библиотеке этого онлайн-сервиса много базовых элементов, типов материалов. Есть возможность изменить габариты проектируемой мебели. Созданный проект можно сохранить, распечатать.
Расчёт шкафа-купе
Данный сервис доступен по адресу https://kupetable.ru/kupe-online/. Авторизоваться для его использования не нужно. При загрузке пользователю сразу предлагают приступить к моделированию шкафа и выбрать систему раздвижных дверей. Вместо купе можно спроектировать обычный шкаф с распашными дверьми.
После ввода нужных параметров можно распечатать готовые расчеты и чертежи.
Рекомендации по проведению работ
Как можно было видеть, сборка шкафа — процесс достаточно простой, который по силам любому домохозяину. Главное при этом — аккуратность при снятии размеров и наличие нескольких, обычно имеющихся дома инструментов: пилы, шуруповерта, шлифовальной машинки (ее можно заменить обычной наждачной бумагой), угломера, уровня и рулетки с карандашом.
Таблица. Фурнитура и приспособления, которые могут понадобиться при изготовлении изделия.
| Наименование | Изображение |
|---|---|
| Саморезы | |
| Конфирматы | |
| Крючки | |
| Мебельные шканты | |
| Уголки | |
| Направляющие для выдвижных ящиков | |
| Штанга для одежды с креплением | |
| Система направляющих для створок | |
| Петли (если устанавливается распашная конструкция) | |
| Декоративные заглушки на места крепления | |
| Ручки для ящиков и дверей |
Кроме представленных приспособлений, могут использоваться и современные виды фурнитуры: системы плавного и бесшумного закрывания, устройства, позволяющие открывать ящики легким нажатием руки (в этом случае отпадает необходимость в установке ручек на ящиках) и т. д.
Для придания привлекательности кромкам ДСП, чаще всего использующегося для производства шкафов, выпускается несколько видов мебельных кромок: бумажные (пропитанные меламином), акриловые, из ПВХ, АБС-пластика или шпона. Проще всего нанести меламиновую кромку. Для этого необходим только утюг. Но и служит она меньше своих аналогов.
Важнейшим элементом в шкафах-купе является раздвижная система. На ней экономить не следует. Изделия низкого качества могут быстро прийти в негодность. На сегодняшний день на рынке представлено множество моделей, отличающихся видом направляющих
Какое бы устройство не было выбрано, рекомендуется обращать внимание на материал, из которого оно изготовлено
Лучше всего приобретать алюминиевые системы
Они долговечны и легко справляются с нагрузками.
Раскрой материала можно выполнить самостоятельно, но если навыков изготовления мебели не так много, лучше доверить эту работу профессионалам.
При сверлении отверстий важно соблюдать четкую геометрию, иначе видимая асимметрия, даже замаскированная заглушками, может испортить внешний вид шкафа.
При ответственном подходе к делу трудозатраты и потраченное время воплотятся в надежную и функциональную конструкцию, в которой будут учтены все индивидуальные пожелания хозяина.



































