Туалет с выгребной ямой
Как сделать уличный туалет своими руками так, чтобы он соответствовал требованиям санитарных норм? Для из соблюдения необходимо размещать туалет:
- не ближе 12 м от жилых построек;
- в 25 м и более от водоемов;
- не ближе 4 м от хозяйственных построек;
- не ближе 1 м до границы соседнего участка.
Кроме того между деревьями и туалетом стоит делать расстояние не менее 4 м, а между ним и кустарниками — не менее 1 м.

При расположении грунтовых вод на глубине менее 2,5 м от поверхности выгребная яма обязательно должна быть изолированной. Для этого обычно используют резервуар из пластика большого объема.

Если грунтовые воды расположены глубже, выгребная яма может быть герметичной или иметь фильтрующее дно.

Глубина ямы должна быть не более 3 м.

После того, как яма вырыта, следует укрепить ее стены. Для этого можно использовать кирпич, бетон или железобетонные кольца.

Особенности строительства туалета на даче своими руками из разных материалов: чертежи и фото готовых строений
Построить туалет на участке можно из любых материалов, кроме того, это прекрасный способ утилизировать остатки, которые остались после возведения жилого дома.
Как построить туалет на даче своими руками из металла
Для каркаса клозета из металла можно взять уголки, а обшивку выполнить из древесины или любых иных надёжных аналогов. Строительство состоит из следующих этапов.
- Для жёсткого каркаса нам понадобятся асбестоцементные трубы, обработанные с внешней стороны битумной мастикой, которая защитит поверхность от разрушения. Их необходимо вкопать по углам строения на глубину до 70 см.
- Заполнить трубы на треть бетоном.
- Вставить по центру каждой трубы металлические уголки строго вертикально и дополнить трубы бетоном для надёжной фиксации.
- Сварить каркас из вертикальных опор и горизонтальных перемычек. Для них подойдут стальные уголки 50×50 мм². Необходимо предусмотреть уклон крыши от 10º до 30º.
- Установить на основание каркас и соединить сваркой или болтами все элементы.
- Обработать весь металл от коррозии.
- Обшить каркас и кровлю профнастилом при помощи саморезов по металлу с прорезиненными шайбами.
- Можно дополнительно утеплить каркас пенопластом толщиной до 30 мм.
- Внутреннюю отделку можно выполнить любым материалом, в том числе и деревом.
- Для пола подойдёт шлифованная доска толщиной до 50 мм. Обязательно следует сделать подиум.
- Для дверного каркаса подойдут стальные уголки или брус.
- Обработать древесину защитными пропитками.
ФОТО: apsheronsk.reklama-kuban.com
ФОТО: tosno-stroy.ru
ФОТО: ua.all.biz
ФОТО: krov-torg.ru
На видео можно более подробно ознакомиться с процессом строительства туалета из профнастила:
Watch this video on YouTube
Туалет на даче своими руками из кирпича: чертежи, размеры
Если вы решите использовать туалет не только летом, но и в холодный период, кирпич – это лучшее решение. Кроме того, он, в отличие от древесины, прослужит не один десяток лет. При желании, клозет можно дополнительно утеплить. Получится настоящее капитальное строение.
Туалет, построенный из кирпича, чертежи, схемы и фото которого представлены в нашей галерее, имеет крышу с небольшим уклоном. Её обязательно нужно вывести за периметр каркаса на расстояние около 150 мм.
ФОТО: rukozhopim.ru
ФОТО: rukozhopim.ru
ФОТО: beton021.ru
ФОТО: svoimi-rykami.ru
Весь процесс строительства ямы и туалета из кирпича можно посмотреть на видео:
Watch this video on YouTube
Деревянный туалет для дачи своими руками: чертежи и размеры
Если вы планируете построить отхожее место из древесины, её обязательно следует обработать защитной пропиткой. Брус сечением не менее 40×60 мм используют для каркаса, в качестве обшивки подойдёт любой материал. Мы подобрали несколько интересных чертежей с размерами, которые можно взять на вооружение.
ФОТО: hozferma.ruФОТО: beton021.ru
ФОТО: vashbiotualet.ru
ФОТО: pinterest.ru
Как своими руками сделать основание из бетона для туалета на даче: размеры, чертежи
Многие владельцы предпочитают покупать готовые кабинки из дерева, для которых потребуется сделать фундамент с ямой самостоятельно. Основание из бетона – это лучшее решение, оно прослужит не один десяток лет. В зависимости от размета туалета, наличия дополнительных пристроек и типа грунта, можно выбрать один из наиболее удобных вариантов.
ФОТО: remontiruj-info.ru
ФОТО: stroypomochnik.ru
ФОТО: nedvigdom.ru
Как сделать самостоятельно
Самостоятельное возведение дачного уличного туалета состоит из нескольких этапов. Рассмотрим их более внимательно.
Выгребная яма

Вначале выбранный участок очищается от растений и мусора. Затем можно перейти к созданию выгребной ямы. Она должна быть квадратной. Минимальная глубина – 2 м.
Дно ямы можно забетонировать. Стенки шпаклюются, а швы замазываются битумом. Если нужна поглощающая конструкция, тогда яма копается до песка. Через него жидкие нечистоты будут быстрее проникать в грунт. На дно здесь кладется галька или гравий. Стены укрепляются бетонной конструкцией, кирпичами, железобетонными кольцами. Также в яму можно поставить большой бак из пластика.
Сверху котлован накрывается брусьями, а потом шифером. Его можно забетонировать, оставив только место под стульчак.
Туалетный домик

Сам домик строится после завершения работ по созданию выгребной ямы. Он на 2/3 должен выдвигается по отношению к нижней части постройки.
При необходимости организуется неглубокое основание. На него укладывается гидроизоляция и пара слоев рубероида.
Вместо основы можно применять строительные блоки или вкопать по углам 4 столба. В последнем случае столбы помещаются в ямы глубиной 60–100 см. Фиксируются они с помощью цемента.
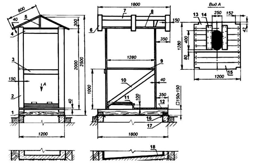
Оптимальная высота сооружения составляет 2,2–2,5 м, а размеры – 1×1,5 м. Каркас возводится из брусьев с сечением 8×8 или 5х5 см. Вначале выводится прямоугольная опора. В ней делается перемычка. Для лучшей прочности по ее диагоналям монтируются укосины. На одной стенке зачастую оставляют место для окна. По углам каркаса устанавливаются прочные уголки. Далее он обшивается досками.
После этого выводится каркас стульчака. Затем к нему прибиваются доски. При использовании напольного унитаза этот пункт не выполняется.
В конце из досок сооружается крыша. Сверху на них кладется гидроизоляция и рубероид.
Вентиляция и освещение

В роли вытяжки выступает пластиковая труба диаметром около 10 см. Ее роль заключается в отведении из ямы неприятного запаха. Труба нижним краем вводится в яму. Ее верхний край выводят над крышей на 20 см.
Труба фиксируется специальными железными хомутами. Для тяги на ее головку устанавливают особую насадку-дефлектор.
Для использования санузла ночью проводится освещение. Если возможно, в сооружение проводится электропроводка и устанавливается небольшой светильник. Также источником света может служить фонарик на батарейках или аккумуляторе.
Днем свет внутрь будет проникать из небольшого окошка или отверстие в дверке.
Установка двери и внутреннее обустройство
В уличный туалет обычно ставят дверь из пластика или дерева. Ее можно вполне сделать самостоятельно, используя остатки обшивочного материала. Навешивается дверь на 2 петли. Для фиксации ее в закрытом положении снаружи и внутри крепится крючок или обычный шпингалет.
Следуя приведенным выше рекомендациям, можно легко и по всем правилам построить своими руками удобный санузел на улице. При правильном возведении такой конструкцией можно будет без проблем пользоваться десятилетиями.
Особенности построения чертежа
Дачный туалет – не такая простая конструкция, как склонны думать многие начинающие строители
Существует ряд особенностей, которые важно учитывать при разработке проекта и построении чертежей
Согласно санитарным нормам, дачный туалет не должен размещаться ближе, чем на расстоянии 12 м от жилого дома и 8 м от колодца или скважины
Правила устройства туалета:
Размеры. Учитывайте размеры внутреннего помещения уборной. Минимально допустимая площадь – 1 х 1 м. Если сэкономить и сделать кабинку меньше, пользоваться ей будет неудобно
Также особое внимание стоит уделить выбору дачного унитаза.
Высота. Имеется и ограничение по высоте
Нежелательно строить сортир меньше 2 м в высоту. Входить в него, согнувшись, очень скоро надоест.
Уклон крыши. При устройстве односкатной кровли задняя стенка проектируется несколько ниже передней. Это делается для формирования уклона крыши и стока дождевой воды за постройку.
Освещение. Если вы не планируете проводить электрическое освещение, обеспечьте попадание дневного света в ваш туалет даже при закрытой двери. Если нет желания возиться с окнами, вырежьте хотя бы небольшое отверстие в верхней части двери.
Вентиляция. Дачный сортир – постройка плохо вентилируемая. Чтобы это исправить, по задней стенке пускают вентиляционную трубу.
Тень. Чтобы в дачном туалете было не душно летом, разместите его в тенистом месте.
Место на участке. Еще один совет по выбору места постройки: избегайте соседства септика или выгребной ямы с источниками водозабора, колодцами, скважинами. Это делается из санитарно-гигиенических соображений.
Если принять во внимание все эти рекомендации, составить проект дачного туалета самостоятельно будет на порядок легче. По типу утилизации отходов отдельно стоящие туалеты подразделяются на накопительные и выносные
Накопительные варианты предполагают сброс продуктов жизнедеятельности в выгребную яму, септик или накопительную емкость
По типу утилизации отходов отдельно стоящие туалеты подразделяются на накопительные и выносные. Накопительные варианты предполагают сброс продуктов жизнедеятельности в выгребную яму, септик или накопительную емкость.
Туалеты с выгребной ямой устраивают в удалении от домов, источников водоснабжения и границ соседних участков.
Выносные биотуалеты — сантехнические устройства с небольшой накопительной емкостью не требуют устройства канализации. Отходы накапливаются и компостируются в небольшой емкости, находящейся непосредственно в сантехнике, нуждающейся в регулярном опорожнении. Павильон для биотуалета можно расположить в любом удобном месте.
Постройку, совмещающую туалет и душевую кабинку, целесообразно подключать к одной накопительной емкости. В этом случае потребуется регулярная откачка стоков по мере накопления резервуара.
Герметичную накопительную емкость, стоки из которой регулярно откачивают, располагать допустимо в 5 м от жилья. Этот способ сбора отходов не угрожает окружающей среде и грунтовой воде.
Туалет на даче, посещаемой периодически лишь в летнее время, разумней будет возвести над выгребом без откачки. Такие ямы по мере наполнения закапывают, а сверху высаживают деревья. Возведенный над ним домик просто переносят на новое место.
Объем выгребной ямы, как и объем накопительной емкости, подбирают в соответствии с численностью проживающих и интенсивностью посещения.
Выбор места
Для правильного определения места под строительство уличного туалета существуют определенные требования, несоблюдение которых может доставить неприятности. По СНиП, туалет должен располагаться на расстоянии не менее 12 метров до жилого строения и минимум 8 метров до колодца или другого источника.
Если это правило не соблюсти, то можно «заработать» приличный штраф или получить предписание о сносе строения. Помимо соблюдения указанных требований, следует учесть и практические советы по устройству туалета.
Для большего удобства туалет не располагают слишком далеко от жилого дома. Это может принести неудобства в экстренных случаях, да и в ночное время не очень приятно бежать в темный и дальний угол участка.
Мнение соседей также не исключают при определении места. Совершенно неприемлемо расположение отхожего места рядом с соседской беседкой. Лучше построить его параллельно с туалетом соседнего участка, это будет оптимальный выбор. Стоит предусмотреть и возможный подъезд спец транспорта, если планируете в будущем заказать ассенизатор.
Идеальный уличный туалет на даче должен быть удобным для пользования, иметь красивый декоративный вид, не вызывать недовольства соседей и не вредить окружающей среде.
Также читайте: Как сделать душ на даче своими руками
Помимо определения места расположения строения, даже самый простой вариант имеет множество аспектов, как правильно сделать клозет своими руками:
- Определить место для отвода стоков и продумать способы их утилизации.
- Подобрать вариант постройки, соответствующий ландшафту участка: кабина, будка или другое решение.
- Придумать внешнее оформление, чтобы оно сочеталось с окружающей обстановкой.
- Произвести необходимые расчеты для покупки материалов.
Эти условия не следует игнорировать, они помогут правильно распределить средства и усилия при строительстве
Особое внимание следует уделить установке основания, это один из необходимых элементов строения
Разновидности дачных санузлов
Построить туалет на даче можно любой конструкции, из всевозможных материалов, разнообразных размеров. При выборе стоит отталкиваться от личных предпочтений, финансовых возможностей, окружающего ландшафтного дизайна.
Что касается разновидностей, то по методу утилизации отходов они классифицируются на:
- Туалеты с выгребной ямой. Являются самыми популярными и распространенными среди дачников. Главное, вырыть вместительную яму и грамотно ее забетонировать. Раз в несколько лет (в зависимости от интенсивности использования и от количества проживающих на даче людей), придется откачивать отходы либо насосом, либо при помощи ассенизаторской машины. Наземная часть туалета с выгребной ямой может быть построены из любых материалов (кирпича, досок, железа, профнастила). Главное, чтобы в нем была надежная каркасная основа и качественная вентиляция.
- Туалеты без выгребной ямы. К ним относятся: люфт-клозеты, пудр-клозеты, химические, торфяные. У каждой конструкции имеются свои преимущества и недостатки. Люфт-клозеты имеют полностью герметичные резервуары для отходов. Такой туалет можно разместить как на улице, так и в отапливаемом помещении. Он отличается гигиеничностью, практичностью и удобством в эксплуатации. По мере заполнения резервуара необходимо просто вызвать ассенизаторскую машину. Пудр-клозеты характеризуются маленьким резервуаром (всего лишь до 20 л). Такой вариант используется в том случае, если грунтовые воды располагаются слишком близко к поверхности земли. Благодаря использованию специального сухого состава в накопительном резервуаре, в таком туалете никогда не бывает неприятных запахов. Основное отличие торфяных уборных заключается в том, что они из отходов делают полезные удобрения для огорода. Единственное, у них небольшая емкость, следовательно, каждые 3-7 дней содержимое резервуара придется высыпать на компостную яму.
Что касается материалов изготовления, то дачные унитазы делятся на:
- деревянные. Это самые распространенные постройки, не требующие особых навыков в строительстве, и больших финансовых затрат. Рассматривая чертежи такого туалета с размерами из дерева можно заметить, что сооружение получается не только функциональным, но и эстетичным. При его сооружении используются: брус, доски, фанера, осб, и другие пиломатериалы. Если использовать древесину хвойных пород, строительство обойдется недорого, а материал будет отличаться высоким качеством и прочностью. Очень привлекательно будет смотреться строение, каркас которого полностью обшит вагонкой. Особого внимания заслуживают сортиры, сооруженные из натурального сруба. Такая постройка обойдется не дешево, зато она порадует необычайной красотой и долговечностью. Но для строительства туалета из сруба необходимо иметь специальные инструменты для работы и определенный навык в строительной сфере;
- металлические. Такие постройки имеют прочный каркас, который обшивается профнастилом. Железный туалет строится быстрыми темпами, но в жаркое время года металл слишком нагревается. Поэтому такие сооружения рекомендуется размещать в тени или под раскидистыми деревьями. А еще лучше, обшить постройку внутри полистирольными плитами;
- кирпичные. Относятся к капитальным постройкам, способным прослужить несколько десятилетий, не теряя привлекательности и первоначальных технических качеств. Но такое сооружение затратное в финансовом плане, строится длительными темпами, и не всегда оправдывается. Так как вес кирпичного строения довольно внушительный, такой туалет требует сооружения фундамента. А это опять же дополнительные расходы и трудоемкость процесса. Если в дачном доме круглый год проживают люди, то можно построить кирпичный сортир. Если же дачей пользуются только в летний период, лучше остановить выбор на более бюджетных металлических или деревянных постройках. Прежде чем приступить к работе, необходимо нарисовать точный чертеж туалета на даче с размерами, используемыми материалами и другими нюансами. Так можно избежать простых ошибок при строительстве кирпичного строения. Как правило, кирпичные сортиры выглядят как небольшие отдельно стоящие домики на участке с одно- или двухскатной кровлей. В них по проекту могут быть предусмотрены окна (особенно если к помещению не подведено электричество), а также крепкие деревянные или металлические двери.
Санитарные нормы для постройки туалета на дачном участке
В процессе возведения туалета на дачном участке, придерживаются следующих санитарно-гигиенических норм проектирования и строительства:
- От построек жилого назначения сооружение размещают на расстоянии минимум 12 м. Причем учитывают не только дома на собственном дачном участке, но и постройки на территории соседей.
- От источников питьевой воды клозеты размещают на расстоянии минимум 20 м. Этот норматив касается только сооружений с выгребной ямой.
- Туалет устанавливают не ближе 1,5 метра до заборов, разделяющих участки.
- Обязательно учитывают высоту грунтовых вод, чтобы избежать их загрязнения отходами. При высоком УГВ предпочтение отдают полностью герметичной системе сбора нечистот.
- При проектировании клозета с выгребной ямой обязательно продумывают способы фильтрации отходов или их удаления. В последнем случае предусматривают проезд для машины ассенизаторов.
- При выборе места расположения учитывают особенности рельефа участка.
Скворечник
Если компактные размеры туалета на даче, возводимого своими руками, имеют большое значение, то лучше выбрать конструкцию типа «скворечник». Это самое простое сооружение с односкатной крышей занимает минимум места на дачном участке. Его отличает простота изготовления, экономия строительных материалов, но небольшая комфортность. «Скворечник» чаще использую в качестве летнего варианта. Основное преимущество конструкции в том, что на крыше можно установить напорный бак.
Избушка
Довольно сложная в реализации, но красивая конструкция клозета типа «избушка». Сэкономить строительные материалы не получится из-за необходимости подрезки и подгонки размеров каждого составного элемента. Преимуществом считают полную герметичность конструкции и возможность использования в холодное время года. Сортир типа «избушка» или, как его еще называют, «теремок» пользуется популярностью за красоту, компактность и большой выбор вариантов дизайнерского оформления.
Шалаш
Это простая архитектурная конструкция с двускатной крышей, доходящей до земной поверхности. Ее отличие в устойчивости и хорошей защите от осадков. Для возведения малогабаритной постройки понадобится минимум материалов. Еще одним преимуществом является достаточное количество свободного места в нижней части, что повышает комфортность сооружения.
Домик
Теплый туалет в виде домика имеет самый разнообразный дизайн, который зависит от предпочтений хозяев. Это наиболее комфортный вариант постройки с точки зрения возможности утепления, защиты от осадков и сквозняков. Объемы земляных работ и расход материалов практически не превышают такие же показатели при возведении «скворечника», зато по прочности и долговечности конструкция намного лучше. Туалет-домик бывает одноместный и двухместный.
Туалет с душем
Туалет с унитазом и душем намного выгоднее и проще возводить, чем два отдельных сооружения. Прежде всего, объемы земляных работ будут намного меньше, ведь понадобится одна сливная яма. Также экономии материалов способствует наличие одной общей стенки и покрытия. Чаще всего клозет, совмещенный с душем, делают в виде домика с двухскатной крышей.
Используя готовые чертежи и размеры туалета на даче, можно возвести постройку собственными руками. В процессе выбора места, проектирования и строительства придерживаются требований нормативных документов, а также используют рекомендации и пошаговое руководство, приведенное выше.
Правила выбора места установки
Обычное расположение уличного туалета – это мало обозримое место или дальняя граница дачного участка. Какова бы ни была конструкция, возле неё будет присутствовать неприятный запах, особенно в летнюю жару.
Существует вариант размещения выгребной ямы возле дома, а помещение для туалета обустраивают внутри дома. Такая система возможна, если есть водопровод и установлена в яму изолированная ёмкость. В помещении устанавливают унитаз, и соединяют его с ёмкостью канализационной трубой диаметром 100 мм.
Независимо от выбранной конструкции необходимо соблюдать ряд правил. Это обеспечит безопасность хозяев и соседей от инфекционных заболеваний. Немаловажным фактором является заражение окружающей среды и грунта. Выбирая место для строительства необходимо соблюдать следующие правила:
- если предусмотрена выгребная система, то место под постройку должно находиться не ближе 30 м от источника воды;
- септика должен находиться на расстоянии не менее 15 м от жилой постройки;
- изолированная ёмкость предотвращает попадания нечистот в грунт, поэтому её можно устанавливать в любом месте.
Простейшая постройка оборудуется квадратной ямой площадью 1 м2. Если предусмотрено обустройство туалета круглой ямой, например из бетонных колец, то её диаметр должен составлять 1 м. Глубина зависит от расположения грунтовых вод и может достигать 1.5-2 м.
Нюансы выбора наземного строения
Определившись с местом установки постройки, необходимо разобрать все вопросы, связанные с наземным строением:
- Важным фактором строительства является вес самой конструкции, зависящий от применяемых материалов. Построенный домик должен быть лёгким, чтобы не создавать большое давление на грунт. Иначе он будет со временем проседать, что вызовет деформацию наземной конструкции, и даже может разрушить стены ямы.
- Обычно каркас домика изготавливают из деревянных брусков или тонкостенных металлических профилей, труб, уголков. Обшивку выполняют лёгким материалом: досками, листовым металлом, пластиковыми панелями и т. д.
- Если принято решение построить домик из кирпича или брёвен, придётся выполнять дополнительное укрепление фундамента. Но результаты такого труда не принесут заметных результатов, и тяжёлая будка зимой не будет теплее, чем лёгкий домик.
- Стандартные размеры домика составляют 1 м в ширину и 2.3 м в высоту. Выбор длины является произвольным и составляет от 1.3 до 1.5 м. Но придерживаться таких размеров не обязательно, главное, чтобы все члены семьи чувствовали себя удобно в сидячем и стоячем положении.
Вывод
При подборе места принимается во внимание роза ветров в конкретной местности. Стоит придерживаться безупречной чистоты в данной постройке. Необходимо содержать в порядке территорию рядом
Наилучшим решением станет его установка со стороны глухой стены жилого здания. Не рекомендуется возводить в стороне, на которую выходит терраса либо веранда
Необходимо содержать в порядке территорию рядом. Наилучшим решением станет его установка со стороны глухой стены жилого здания. Не рекомендуется возводить в стороне, на которую выходит терраса либо веранда.
Это видео также подскажет, где правильно разместить уборную на участке.
Такое соседство будет доставлять неудобство, выглядеть неэстетично, создавать в летний период запах, который будет неприятен отдыхающим по соседству людям. Соблюдая нормы, мы создадим комфорт и себе, и соседям.


































