⇡#SketchUp Make 2013
- Разработчик: Trimble
- Операционная система: Windows
- Распространение: бесплатно
- Русский интерфейс: есть
Долгое время программа SketchUp разрабатывалась под маркой Google, но теперь за нее отвечает компания Trimble. Впрочем, для конечного пользователя это мало что меняет — базовая версия программы (которая называется теперь SketchUp Make) по-прежнему бесплатна, а библиотека пользовательских трехмерных моделей, которая раньше называлась Google 3D Warehouse, доступна по сей день. Правда, называется уже SketchUp 3D Warehouse.
Когда в 2006 году компания Google приобрела SketchUp у @Last Software, было очевидно: поисковый гигант намерен сделать эту программу основным инструментом создания 3D-моделей для «Google Планета Земля». Однако пользователи с успехом применяли 3D-редактор и во многих других сферах. Благодаря этому в библиотеке программы за годы ее существования скопилось достаточно много моделей, которые могут использоваться при проектировании домов, приусадебных участков и интерьеров. Библиотека моделей SketchUp 3D Warehouse встроена прямо в окно программы. Искать модели можно по типу объекта или же по ключевым словам.
Впрочем, возможности SketchUp не ограничиваются готовыми библиотеками. Все объекты, необходимые для проекта, могут быть созданы вручную. При моделировании удобно использовать так называемые динамические объекты, которые изменяются в соответствии с ожиданиями пользователя. Например, если уменьшить размеры лестницы, число ступенек тоже пропорционально изменится. При создании архитектурных проектов также удобно пользоваться специальным инструментом «Рулетка», предназначенным для измерения расстояний. Пригодится и возможность добавления географических координат, которую можно использовать для просчета теней в разное время суток. Эта опция реализована через интеграцию с «Картами Google».
Встроенные возможности визуализации SketchUp довольно скромны, но для программы созданы десятки дополнений, при помощи которых можно решить эту проблему. Даже популярнейший фотореалистичный визуализатор VRay доступен для SketchUp. Начиная с версии SketchUp 2013, в программу интегрирован магазин дополнений, поэтому найти, скачать и установить нужное расширение можно, не покидая окно SketchUp.
Без использования дополнений на фотореалистичную визуализацию можно не рассчитывать, ведь SketchUp изначально позиционировалась как программа для создания набросков. Поэтому встроенными средствами можно представить проект лишь как рисунок: карандашный, маркером, красками и так далее. Впрочем, это представление в большинстве случаев может быть достаточно наглядным, да и много времени такая «визуализация» не займет.
Как делать проект: подготовительные этапы создания чертежа
Перед тем как сделать чертеж частного дома, нужно определиться с тем, каково будет его прямое предназначение: будет ли он служить загородным местом отдыха в летнее время или жильем для круглогодичного обитания всей семьи. Количество домочадцев тоже необходимо иметь в виду. При этом нужно учесть образ жизни членов семьи, их вкусы, предпочтения и увлечения.

Перед началом создания чертежа нужно определиться с количеством жильцов дома
Если будущие обитатели дома – приверженцы тихого образа жизни, то здание нужно размещать на территории, которая находится подальше от проезжей части и соседних участков. Лучше всего – в глубине сада. Для открытых, общительных людей дом можно построить в начале участка, выставив напоказ фасад коттеджа и красивый ландшафт перед ним. В техническом плане особенно важны геодезические данные, полученные путем исследования территории. Они укажут на особенности поверхности, состав грунта и наличие наклонов, что позволит создать план местности.
Чтобы проектировка дома была упорядочена, процесс условно разделяют на этапы, которые потом отображаются в следующих разделах готового проекта дома:
- эскизном;
- архитектурном;
- конструктивном;
- инженерно-техническом;
- дизайнерском или отделочном.
Определившись с месторасположением и предназначением будущего жилища, можно приступать к проектировке дома. С этой целью делают первоначальные наброски. При наличии элементарных художественных навыков хозяева смогут сделать это самостоятельно, даже без специальной компьютерной программы для постройки дома. На базе набросков составляется основной эскиз. В соответствии с ним подготавливают все остальные подробные чертежи и определяются с планировкой будущей постройки.
Что необходимо учитывать при составлении схемы дома
Уже на этапе составления эскиза нужно четко определиться с количеством этажей, типом кровли, внешним видом фасада и фронтальных частей дома, вплоть до количества окон, балконов, наличия террасы или мансарды. Эскизный проект также предполагает наброски вида здания в продольном и поперечном разрезах, где указываются особенности конструкции и материалы, из которых предполагается возводить дом.

Пример чертежа одноэтажного дома из кирпича с мансардным этажом
Перед тем как нарисовать план дома, необходимо определиться с расположением участка и изучить ориентацию относительно сторон света. Исходя из этих данных, определяется месторасположение комнат. Их количество зависит от того, сколько людей будет жить в здании и как часто будут приезжать гости на длительное время. Размещение помещений и функциональное предназначение каждого из них также является важным элементом.
Далее требуется определить, какие конкретно комнаты будут отведены членам семьи, а какие – гостям и работникам, если предполагается формирование определенного штата. Не следует забывать о планировке помещений, в которых будет собираться вся семья, – это столовая, зал или гостиная.
Важно учесть предпочтения и увлечения обитателей дома, чтобы выяснить необходимость включения в планировку тренажерного зала, бассейна или сауны, зимнего сада либо оранжереи, библиотеки с кабинетом или просторной мастерской

При составление эскизного проекта дома нужно учитывать все пожелания будущих жильцов
Что такое планировка дома
Основой любого проекта является составление плана дома, который изображен на документах. Их впоследствии нужно зарегистрировать в соответствующих инстанциях.
Важно. Сделать это нужно ещё до начала строительства
Это поможет избежать разнообразных штрафных санкций из-за незаконности постройки.
В нём отображена полностью вся планировка дома:
- расположение основных конструкций дома;
- разнообразные перегородки;
- размещение комнат и их количество;
- окна и двери.
Кроме этого указано:
- какими размерами наделено строение;
- материал для возведения стен;
- кровельная конструкция;
Схема устройства крыши
расстановка сантехнического оборудования и систем вентиляции, отопления.
Планировка строения может быть разной. Всё зависит от его формы и размеров.
Необходимость в проекте и чертежах дома
Согласно законодательству, возводить частные дома можно как с проектом, так и без него. Однако опыт компетентных в этой сфере людей показывает, что наличие проекта имеет определяющее значение на этапе строительства. Без него работа усложняется, и в алгоритме действий и их точности появляются сбои. Еще сложнее становится, если нет схемы строения и расходной сметы. Более того, проект и эскизы, даже созданные самостоятельно, позволят сэкономить на услугах инженеров и архитекторов. Разобраться во всех аспектах не выйдет, но освоить азы проектирования простых домов под силу всем. Разработаны также специальные программы для составления планов.
Проекты помогают рассчитать расход материалов, описать параметры комнат и зданий, выбрать идеальное место для дверей, окон и балконов, определиться с предназначением помещений и функционалом построек. Подробно расписанный план нужен для расчета конструкции фундамента и кровли. Он играет ключевую роль для прокладки и выбора местонахождения:
- отопления;
- водопровода;
- септика;
- выгребной ямы;
- вентиляции.

Планировка с размерами
Описание архитектурных элементов: чертежа здания, планировки жилых, хозяйственных помещений, обозначения окон, дверей.

- Расчёт конструкции фундамента, коробки, кровли, схематичное изображение чертежей с разметками.
- Электрическое оснащение с подробным планом подключения дома к энергосети и схемой разводки розеток.

Инженерные сообщения: вентиляция, газ, септик, водопровод, отопление.
Как показано выше, в структуру схемы входит план дома с мансардой, в котором указывается площадь, внутренняя расположенность помещений основного строения, с нанесением на схему дверей, перегородок, лестницы и окон.
Чертеж и планировка всех этажей здания с мансардой
Получается, что, отказываясь от услуг архитектора, вся составляющая документации проекта ложится на владельца жилья. Ведь планировка квартир отдельно от планового расчета существовать не может. Все же под руководством проектировщика, хозяин владения, может начертить план сам.
Архитектор, Стиль, Город, Конструкция, Заказчик
| Архитектор | Стиль | Конструкция | Заказчик |
|---|---|---|---|
|
|
|
|
Как выбрать планировку дома для дачи. С верандой и террасой
При выборе планировки дачного дома часто стараются найти проект с верандой или террасой. Подобная крытая площадка хороша не только для отдыха или трапез на открытом воздухе. В дождливый или жаркий день под навесом можно провернуть немало дел, которые из-за большого количества мусора в помещениях не сделаешь.

Отдых на даче не менее важен, чем работа. А что может быть приятнее, чем отдых на открытом воздухе
На общем фундаменте
Проекты дачных домов с верандой есть небольшой площади: самые маленькие имеют размеры 6*4 метра, причем веранда занимает 2 метра по длинной стороне, а собственно дом — 4*4 метра или 16 квадратных метров (с учетом толщины стен и того меньше).

Проект дачного дома 6*4 с верандой и санузлом
Представленный выше проект предусматривает зимнее использование дачи. Для сохранения тепла в домике, есть вход через тамбур. Вход через веранду может использоваться в летнее время. Хорош он и тем, что есть в нем санузел — небольшая душевая кабинка, с умывальников и унитазом. Если канализации на даче нет, можно рассмотреть вариант биотуалета.
Еще один вариант — одна комната, в которой отведено место под несколько кухонных шкафчиков и плиту, стоит небольшой обеденный стол и есть спальное место. Такая планировка идеальна для проживания одного человека. Неплохо в ней себя будут чувствовать двое. В данном варианте санузла нет, так что придется строить туалет отдельно.

Проект маленького дачного дома с верандой под общей крышей
Планировка дачного дома маленькой площади (до 40 метров) совсем проста: обычно это две комнаты, первая из которых используется как кухня и столовая одновременно. Чаще всего она является проходной. Вторая комната жилая. Более-менее комфортно разместить тут можно два спальных места. Так что проекты дачных домов с мансардой 6*4 метра рассчитаны на проживание 1-2 человек.

Проект дачного дома с санузлом и открытой террасой под односкатной крышей
Если бюджет строительства сильно ограничен, рассмотреть проекты дачных домов с односкатной крышей. Они непривычны для нашей станы, но стоимость кровли при небольшой площади намного меньше. Только надо выбрать правильный угол уклона кровли (с учетом величины снежного покрова).

Дачный дом с зарытой зимней верандой 8*8 метров, проект с планировкой
Дачный дом средних размеров представлен на фото выше. Проект интересен тем, что веранда тут изначально «зимняя», застекленная. Большинство обладателей открытых веранд приходят к необходимости ее застеклить, а для приятного времяпровождения на воздухе построить беседку. В данном проекте веранда является продолжением гостиной, но тут может быть установлена перегородка. В общем и целом, удобный и комфортный дом с традиционной планировкой, все комнаты отдельные, есть санузел, выгороженный коридор. Все условия для круглогодичного проживания.
На отдельном фундаменте
Обратите внимание, что приведенные выше проекты дачных домов с верандой имеют общий фундамент. Это надежно, так как даже при весеннем пучении почвы подвижек не будет
Но затраты на фундамент получаются значительные. Потому обоснован такой подход на сложных грунтах, склонных к пучению. В на нормальных грунтах можно можно делать веранду на отдельном, несвязной и облегченном (обычно — столбчатом или свайном) фундаменте. Один такой проект представлен ниже.

План дачного дома 4*8 с пристроенной верандой
Вообще, веранду можно пристроить к любой постройке. Ее можно закладывать на этапе проектирования, а можно пристроить после (как бывает очень часто).

Небольшой дачный дом 6*4,5 с верандой на отдельном фундаменте
Веранда может занимать полностью одну из сторон дома, может охватывать два или даже три его стороны. Но есть варианты и с небольшой открытой площадкой (как на фото выше). Фундамент в этом случае может быть отдельный, но большой экономии не будет. Например, в приведенном выше проекте «выиграли» лишь 1,1 метра «основного фундамента.

Одноэтажный дом 7*7,5 с пристроенной террасой
Мы настолько привыкли к комфорту, что даже на даче не желаем иметь «удобства во дворе». Для многих основным критерием выбора является наличие санузла. Даже необходимость оборудования индивидуальной канализации их не пугает. Не все проекты дачных домов маленькой площади могут похвастаться таким «излишеством», но в некоторых санузел (туалет и душ) присутствует.
Скачать ТОР-10 проектов AutoCAD
1) 5-ти этажный жилой дом (скачать готовые проекты Автокада: АР, КЖ, КМ, кладочный план и т.д.)
Рис. 1 – Скачать проект Автокад “5-ти этажный жилой дом”.
2) Бизнес-центр: планы, фасады, характеристика здания. Скачать готовый проект AutoCAD.
Рис. 2 – Бесплатные проекты в Автокаде “Бизнес-центр”.
3) Монолитное 16-ти этажное здание (дипломный проект в Автокаде). Скачать проект жилого дома в Автокаде.
Рис. 3 – Готовый проект в Автокаде “16-ти этажное монолитное здание”.
Рис. 4 – Дипломный проект AutoCAD “16-ти этажное монолитное здание”.
4) Проект реконструкции в Автокаде административного здания. Скачать рабочие чертежи Автокада.
Рис. 5 – Готовые чертежи проекта AutoCAD “Реконструкция существующего здания администрации”.
Рис. 6 – Проекты домов Автокад. Скачать диплом “Реконструкция существующего здания администрации”.
Рис. 7 – Проект дома в Автокаде скачать “Реконструкция существующего здания администрации”.
Рис. 8 – Проекты/чертежи Автокад. Скачать диплом “Реконструкция существующего здания администрации”.
Рис. 9 – Типовой проект в Автокаде. Экономический расчет
5) Спорт-комплекс (архитектурный план). Скачать проект AutoCAD.
Рис. 10 – Проект AutoCAD “Спорт-комплекс”
6) Проект AutoCAD “Колокольня”. Скачать рабочие чертежи Автокада.
Рис. 11 – Готовый проект Автокад “Колокольня”
7) Коттедж в Автокаде: курсовая работа. Скачать проект AutoCAD.
Рис. 12 – Бесплатные проекты Автокад. Курсовой “Коттедж”
8) Проекты 6-и коттеджей в формате *.DWG. Скачать чертежи Автокада.
Рис. 13 – Коттеджи в Автокаде. Готовые проекты dwg.
9) Классический коттедж с красивым фасадом. Скачать готовый проект Автокад.
Рис. 14 – Проекты домов в Автокаде. Скачать готовые чертежи.
Рис. 15 – Дом в Автокаде. Коттедж “классический”.
Рис. 16 – Скачать проекты домов Автокад.
11) 5-ти этажный дом в Автокаде (3D модель). Скачать готовый проект Автокад.
Рис. 17 – Скачать 3D модель дома в AutoCAD.
Конструктивный раздел: как нарисовать чертежи и схемы отдельных элементов
Конструктивный раздел – это уже детализированная часть проекта, в которой приведены как общие, так и отдельные данные, различные схемы расположения элементов постройки: фундамента, лестничных конструкций, перекрытий, стропильного сооружения. Также в эту часть внесены подробные чертежи всех узлов, где указывается специфика изделий и материалов.
Чертеж сечения фундамента расшифровывает размеры ленточных укреплений дома, глубину их залегания и материалы, которые необходимы для их сооружения.
Изображение фундамента представлено в виде таких планов-чертежей:
- общего плана фундамента;
- схемы продольного сечения;
- чертежа поперечных разрезов.
Определенные виды чертежей предусматривают сечение плит перекрытия, их продольные и поперечные разрезы в разных отметках:
- план перекрытия в точке +0,00;
- на отметке + 3,00;
- на высоте +6,00.
На конструктивном этапе делаются схемы расположения фундамента, перекрытий, стропильного сооружения.
Узлы конструкционных деталей – это объекты особого строения, включающие лестницы и пролеты как снаружи, так и внутри помещения. Здесь же приведены точные расчеты на прочность и статичность.
В этом разделе проекта в отдельных таблицах содержатся характеристики и последовательность использования материалов, в частности:
- стальной арматуры;
- железобетонных элементов;
- деревянных перекладин.
Создание плана дома
Перед тем как сделать планировку определяемся с количеством и размером необходимых помещений, чтобы представлять себе общую площадь дома и решить, сколько делать этажей. Полученную цифру нужно умножить на коэффициент 1,25, который учитывает толщину наружных и внутренних стен и перегородок. И получаем площадь застройки по внешнему периметру.
Затем подбираем оптимальную длину и ширину наружных стен исходя из требований к размещению на участке и вида строительных материалов. Например, если решено строить дом из бруса, стоит иметь в виду стандартную длину этого пиломатериала – 6 метров. Чтобы не было лишних обрезков и, соответственно, расходов, логично было бы выбрать такие параметры дома, чтобы они были кратны половине длины бруса: 6, 9, 12, 15 метров.
Приведём пример. Если общая площадь застройки составила 180 м2, а ширина дома по фасаду не должна превышать 14 м, то её можно уменьшить до 12 м, длина при этом составит: 180 : 12 = 15 м.
Эскизное проектирование дома (стадия ЭП)
Архитектурный эскизный проект (АП)
Эскизный проект дома – это первичные архитектурно-дизайнерские решения, являющиеся основой для разработки строительной документации. На этапе эскизного проектирования создаётся стилистическая концепция будущего коттеджа, определяется максимально функциональная и удобная планировка.
После создания эскизного проекта, по желанию заказчика, выполняется 3D визуализация будущего коттеджа в разных цветовых решениях фасада:




Состав альбома эскизного проекта
- Ведомость чертежей
- Пояснительная записка. Пояснительная записка включает в себя краткое описание дома (архитектурный стиль, общая площадь, этажность), перечень помещений по этажам, краткое описание элементов отделки фасада дома, особенность климатической зоны, для которой проектируется коттедж, основные конструктивные решения и материалы).
- Генеральный план дома. На генеральном плане отражено общее размещение дома на участке и расположение прилегающих пристроек, схематичное расположение подвода к дому инженерных коммуникаций (канализация, водоснабжение, ливневая канализация, электроснабжение, газоснабжение).
- Поэтажные планы с экспликацией помещений. На поэтажных планах указывается метраж основных помещений, расстояние между стенами, расположение дверных и оконных проёмов.
- План кровли. На плане кровли указываются поверхности кровли со сторонами и углами наклона. Отмечается высота верхней точки каждой поверхности.
- Фасады в осях. На чертежах отражён вид основных декоративных элементов фасада, а также высота их расположения.
- Разрезы. На разрезах видно высоту межэтажных перекрытий, лестниц, оконных и дверных проёмов.
Образцы чертежей









Важно отметить, что архитектурный эскизный проект ещё не регламентирует, а лишь намечает архитектурно-планировочные решения и основные технико-экономические показатели. Более конкретно конструктивные особенности дома определяются при разработке рабочего проекта, поэтому строить по эскизному проекту нельзя. Однако его достаточно для согласования проекта строительства дома в соответствующей комиссии
Однако его достаточно для согласования проекта строительства дома в соответствующей комиссии.
Компьютерные программы проектирования домов: надежные помощники в создании проектов
Современные компьютерные технологии позволяют быстро визуализировать все желания и изобразить дом своей мечты. Более того, благодаря специальным программам можно самостоятельно осуществлять 3Д-проектирование дома. Даже неопытные пользователи смогут это сделать с помощью, например, Google SketchUp. В этом сервисе можно спроектировать как жилые, так и хозяйственные помещения.
С помощью онлайн-планировки дома прямо в браузере можно создавать модели построек с указанием точных размеров и даже текстуры материалов. Программы офлайн предполагают скачивание и установку на ПК, поэтому компьютер должен иметь достаточный объем оперативной памяти.
Конструктор домов позволяет с помощью отдельных образцов и деталей спроектировать виртуальный шикарный коттедж или маленький загородный домик. Такие программы дают возможность не только конструировать разные модели, но и составить список материалов и деталей, необходимых для приобретения, и даже вычислить приблизительную стоимость проекта.

С помощью компьютерных программ можно легко спроектировать дом самостоятельно
Среди популярных электронных продуктов следует назвать такие, как AutoCAD и КОМПАС-3D. Это универсальные программы, которые можно применять для создания проектов домов и интерьеров. Их главный недостаток – высокая цена. К более дешевым, но менее функциональным относится Ashampoo Home Designer – это идеальный выбор для новичков в проектировочном деле.
Чертежи частных домов являются основным элементом в строительном проекте. От их правильного выполнения зависит не только надежность самой конструкции, но и продолжительность службы коммуникаций и систем обеспечения жилища, что делает его долговечным, комфортным и уютным для проживания семьи. Поэтому подходить к вопросу создания чертежей следует максимально внимательно и ответственно.
Перечень обязательных архитектурных чертежей дома с размерами
Архитектурно-строительные чертежи предполагают указание точных габаритов, содержат характеристики общих параметров дома, отдельных сооружений, конструкций и их частей. Здесь включены детальные планы каждого из этажей, предусматривающие размещение жилых комнат и хозяйственных помещений. Указывается площадь всех элементов, высота потолков, месторасположение проемов для окон и дверей.
Например, чертежи для двухэтажного дома с мансардой в архитектурно-строительном разделе располагаются в таком порядке:
- план подвала;
- план первого этажа;
- план второго этажа;
- план мансарды.
Также в этом разделе должен быть размещен план стропильной конструкции крыши. Чтобы начертить чертеж, необходимо изобразить полную систему элементов конструкции перекрытий в сечении. В таблице, которая прилагается к чертежу, указываются спецификация частей стропильной конструкции крыши, полный список ассортимента материалов и их количество. План кровли составляется отдельно, в нем указаны форма, габариты, скатность крыши и углы наклонов, а также месторасположение вентиляционных выходов, слуховых окон, люкарн, окон мансарды.
План подвального этажа, где 1 – холл, 2 – комната отдыха, 3 – топочно-постирочная, 4 – тамбур, 5 – кладовая, 6 – кладовая, 7 – санузел, 8 – сауна, 9 – спортзал, 10 – терраса.
Чертежи частных домов в обязательном порядке включают несколько разрезов с указанием всех элементов строения вдоль или поперек. Их выполняют последовательно от крыши к фундаменту. Таким образом, в сечении видны размеры и расположение пола, всех перекрытий и крыши. Подобных разрезов, сделанных с разных сторон, должно быть пять.
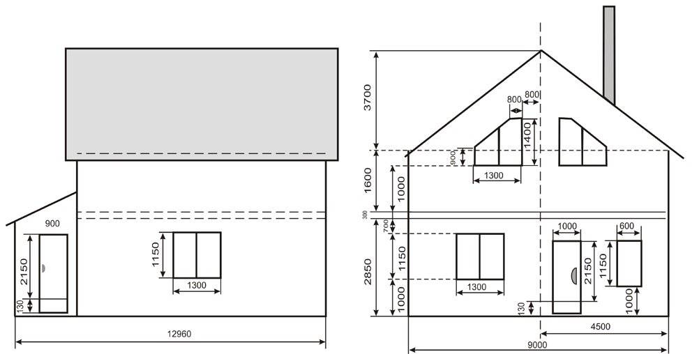
Чертежи фасадов зданий

Вид на здание спереди (со стороны улицы) называют главным фасадом, вид сзади (со стороны двора) — дворовым, а виды слева или справа торцовым. В проектах зданий наименования фасадов увязывают с марками разбивочных осей, указывая в названии фасада левую и правую крайние разбивочные оси или марку той оси, которая расположена в изображаемой на фасаде стене, например фасад 1
—8, ФасадБ —А, Фасад по осиА, Фасад по ОСИ1 II т. д.
В чертежах взаимозеркальных фасадов проставляют крайние оси того и другого фасада, например, фасад А
—Б ИБ —А. По чертежам фасадов судят о внешнем облике зданий, о расположении и форме некоторых конструктивных и архитектурных элементов: окон, дверей, балконов, наличников, сандриков, пилястр, колонн и т. п.
На чертежах фасадов крупноблочных и панельных зданий показывают разрезку (членение) стен на панели или блоки. Если на таком фасаде указаны марки элементов, его называют монтажным.
В проектах зданий, где конструктивные чертежи выделены в отдельную часть, марки элементов фасадов показывают на монтажных схемах (см. рис. 57). В зависимости от стадии проектирования, назначения и величины здания чертежи фасадов зданий выполняют в масштабах от 1 :50 до 1 :500. Сложные участки фасадов зданий вычерчивают в масштабе 1 :50 или 1 :100 на чертежах элементов фасадов. На основном чертеже фасада при этом должна быть ссылка на номер листа, где изображен элемент фасада. Так, например, на рис. 37 приведен элемент фасада 1 производственного здания, фасад Б
—А Которого изображен на рис. 36.
В свою очередь отдельные участки элемента фасада могут изображаться в более крупном масштабе как чертежи деталей. На рис. 38 показаны детали 1, 2, 3 и 4
Фасада того же здания.
Видимые контуры на чертежах фасадов обводят тонкими линиями. Так, контуры здания и проемов имеют толщину 0,3—0,4 Мм,
Контуры оконных переплетов, членения стен на панели и блоки, контуры поясков, карнизов и других архитектурных элементов стен обводят линиями в два раза тоньше контуров здания и проемов. Линия контура земли должна быть толстой, она должна выходить за пределы фасада на 20—30Мм. Толщина этой линии 1 —1,5Мм. Степень проработки отдельных деталей фасада зависит от масштаба чертежа. Так, например, детали оконных переплетов, дверей и ворот показывают на фасадах, выполненных в масштабах 1:100 и крупнее (см. рис. 34). При более мелких масштабах вычерчивают только контуры створок или проемов (см. рис. 35).
Размеры на чертежах фасадов обычно не наносят, показывают только разбивочные оси у углов здания, у деформационных швов и в местах перепада высот. За пределами чертежа справа или слева от него выносят и надписывают высотные отметки уровня земли, пола первого этажа, цоколя, низа и верха проемов, карниза и поясков, верха кровли и т. п. На чертежах панельных зданий указывают не отметки проемов, а отметки горизонтальных швов панелей.
Для лучшего выявления объемной композиции здания на чертежах фасадов строят собственные и падающие тени (см. рис. 34). При этом направление лучей света принимается таким, чтобы их проекции располагались под углом 45° к оси координат. Это позволяет показать истинные размеры выступов и впадин фасада в масштабе чертежа.
Отдельные чертежи фасадов, выполняемые в стадии проектного задания, отмывают сухой тушью или акварельными красками. Для большей выразительности чертежа помимо здания показывают ландшафт или городскую застройку. Такие чертежи принято называть архитектурными фасадами.
В стадии проектного задания здания могут изображаться и в перспективе. Эти чертежи дают более наглядное представление об архитектурно-художественной композиции проектируемых зданий.
Индивидуальное проектирование.
Главная визитная карточка проектной мастерской ARCHIPELAG – разработка индивидуальных проектов домов. Придя в нашу мастерскую по предварительной договоренности, Вы сможете получить советы и рекомендации опытных архитекторов по проектированию и строительству будущего дома. Профессионалы высокого уровня помогут Вам воплотить в реальность все идеи и задумки, предложат самые оптимальные варианты в соответствии с Вашим бюджетом, подскажут, как избежать ошибок на этапе строительства и помогут принять правильное решение. Решив стать нашим клиентом, Вы получите качественный проект дома со всей необходимой документацией, полную смету основных материалов, необходимых для строительства, а также официальный договор и документ, подтверждающий оплату.
Проектная мастерская АРХИПЕЛАГ – это многолетний опыт, высококлассные специалисты, европейское качество и гарантии. ARCHIPELAG – Ваш надежный друг и помощник в проектировании и строительстве дома Вашей мечты!
Как делать проект: подготовительные этапы создания чертежа
Перед тем как сделать чертеж частного дома, нужно определиться с тем, каково будет его прямое предназначение: будет ли он служить загородным местом отдыха в летнее время или жильем для круглогодичного обитания всей семьи. Количество домочадцев тоже необходимо иметь в виду. При этом нужно учесть образ жизни членов семьи, их вкусы, предпочтения и увлечения.

Перед началом создания чертежа нужно определиться с количеством жильцов дома
Если будущие обитатели дома – приверженцы тихого образа жизни, то здание нужно размещать на территории, которая находится подальше от проезжей части и соседних участков. Лучше всего – в глубине сада. Для открытых, общительных людей дом можно построить в начале участка, выставив напоказ фасад коттеджа и красивый ландшафт перед ним. В техническом плане особенно важны геодезические данные, полученные путем исследования территории. Они укажут на особенности поверхности, состав грунта и наличие наклонов, что позволит создать план местности.
Чтобы проектировка дома была упорядочена, процесс условно разделяют на этапы, которые потом отображаются в следующих разделах готового проекта дома:
- эскизном;
- архитектурном;
- конструктивном;
- инженерно-техническом;
- дизайнерском или отделочном.
Определившись с месторасположением и предназначением будущего жилища, можно приступать к проектировке дома. С этой целью делают первоначальные наброски. При наличии элементарных художественных навыков хозяева смогут сделать это самостоятельно, даже без специальной компьютерной программы для постройки дома. На базе набросков составляется основной эскиз. В соответствии с ним подготавливают все остальные подробные чертежи и определяются с планировкой будущей постройки.
Что необходимо учитывать при составлении схемы дома
Уже на этапе составления эскиза нужно четко определиться с количеством этажей, типом кровли, внешним видом фасада и фронтальных частей дома, вплоть до количества окон, балконов, наличия террасы или мансарды. Эскизный проект также предполагает наброски вида здания в продольном и поперечном разрезах, где указываются особенности конструкции и материалы, из которых предполагается возводить дом.

Пример чертежа одноэтажного дома из кирпича с мансардным этажом
Перед тем как нарисовать план дома, необходимо определиться с расположением участка и изучить ориентацию относительно сторон света. Исходя из этих данных, определяется месторасположение комнат. Их количество зависит от того, сколько людей будет жить в здании и как часто будут приезжать гости на длительное время. Размещение помещений и функциональное предназначение каждого из них также является важным элементом.
Далее требуется определить, какие конкретно комнаты будут отведены членам семьи, а какие – гостям и работникам, если предполагается формирование определенного штата. Не следует забывать о планировке помещений, в которых будет собираться вся семья, – это столовая, зал или гостиная.
Важно учесть предпочтения и увлечения обитателей дома, чтобы выяснить необходимость включения в планировку тренажерного зала, бассейна или сауны, зимнего сада либо оранжереи, библиотеки с кабинетом или просторной мастерской

При составление эскизного проекта дома нужно учитывать все пожелания будущих жильцов
Стоимость изготовления эскизного проекта
Введите ориентировочную общую площадь дома и нажмите «Рассчитать» чтобы узнать стоимость индивидуального изготовления эскизного проекта. Для клиентов нашей архитектурной мастерской предлагается на выбор 3 варианта комплектации данного проекта.
- Упрощенный эскизный проект
- 48000 руб.
- проект без 3D
только осевые размеры
на фасадах габаритные высотные отметки
только электронная версия проекта (PDF) - Срок изготовления эскизного проекта:
2,8 — 3 недели - Оплата: 50% — аванс,
25% — после утверждения варианта планировочных решений и фасадов,
25% — после оформления и сдачи проекта
- Базовый эскизный проект
- 74000 руб.
- 3D визуализации
(подача в ч/б графике)
на планах указаны все размеры и привязки на фасадах
все высотные отметки
2 печатных экземпляра проекта формата А3 + электронная версия (PDF) - Срок изготовления эскизного проекта:
3 — 3,5 недели - Оплата: 50% — аванс,
25% — после утверждения варианта планировочных решений и фасадов,
25% — после оформления и сдачи проекта
- Расширенный эскизный проект
- 100000 руб.
- 3D визуализации (фотореалистичные) , дизайн экстерьера, подбор фасадных материалов по актуальным каталогам производителей
фасады дома в цвете
на планах все размеры и привязки на фасадах
все высотные отметки
2 печатных экземпляра проекта формата А3 + электронная версия (PDF) - Срок изготовления эскизного проекта:
3,5 — 6 недель - Оплата: 50% — аванс,
25% — после утверждения варианта планировочных решений и фасадов,
25% — после оформления и сдачи проекта



































