Общие советы
Перед составлением проекта будущего банного домика стоит учитывать несколько моментов.
Дерево — традиционный материал для отделки парилки и других пространств. Площадь значения не имеет, оно идеально и для дизайна небольшой бани внутри, и для просторных домов.
Древесина — это не только эстетика. Древесные ароматы, которые выделяются при нагревании материала, хорошо влияют на организм. А главное, дерево не обжигает даже при высоких температурах.
Можно использовать несколько видов пород для разных помещений.
Бревно и вагонку комбинируют с камнем, кирпичом и плиткой
С помощью сочетания фактур можно зонировать пространство — здесь действуют классические правила оформления.
Для внутренней отделки не используются обыкновенные лакокрасочные вещества, только специальные — это важно. При нагревании первые могут выделять вредные пары
К тому же, они не прослужат долго, под воздействием высоких температур такие материалы разрушаются.
Стоит, вероятно, несколько отрешиться от конкретики стилей и дать несколько советов, которые применимы к любым стилям в бане, потому что затрагивают общие колористические решения.

Светлое и темное. Большинство уже знает, что светлое создают иллюзию большего объема помещения, чем на самом деле, а темное – меньшего. Но увеличивая зрительно объем, мы должны его заполнить, чтобы он не смотрелся пустым. Для этого годятся разнообразные цветовые акценты, распределенные в пространстве.
Если же вы выбираете темное, то даже сокращение объема может быть обыграно правильно – как создающее камерность,уют в вашей бане. Для этого количество предметов в помещении должно быть невелико, а сами они – пропорциональны относительно размеров помещения.
СОВЕТ! Если речь идет о небольшой парилке в бане, подвесные лежаки будут визуально занимать меньше места, чем зашитая со всех сторон ступенчатая «пирамида».

В темном помещении яркие цвета обретают еще большую яркость, насыщенность.
Монотонности пространства, окрашенного в какой-то один, нейтральный цвет, можно не бояться, если заинтересовывать глаз деталями мебели и цветовыми пятнами. Посмотрите в интернете примеры скандинавского стиля – однотонные стены, простая мебель, но яркие предметы делают его нескучным и очень привлекательным.
Еще стоит помнить о том, что глаз человека постоянно ищет соответствия, закономерности, и мы улавливаем гармонию там, где есть визуальная «рифма» – цвет плафона и цвет текстиля, например. Или же обыгрыш какой-то формы – округлой или линейной – в отделке стен и формах мебели бани.
Впрочем, незыблемых правил композиции не существует – все всегда решает чувство меры и вкус конкретного человека.
Баня из арболита
Арболи́т представляет собой «легкий бетон», сделанный из органического наполнителя и скрепленного посредством цементного вяжущего раствора. Это редкий, но вполне приличный вариант.
Сами стены строения собирают из блоков либо делают монолитными. Баня получается теплой, достаточно прочной, а строительство не требует высоких финансовых вложений.

Мы рассмотрели основные варианты для капитальной бани. Выбор того или иного способа полностью зависит от ваших материальных возможностей и предпочтений. Выбрав тип будущей бани, можно переходить к следующему шагу – подобрать место на участке, где она будет расположена.

Теплоизоляция сауны
Для экономии электрической энергии в сауне специалисты советуют использовать при её обустройстве качественную теплоизоляцию. Рекомендуемая толщина – 50 мм.
Важно помнить, что чем толще утеплитель, тем быстрее будет прогреваться воздух и тем меньше будут цифры на электросчётчике.
- Поверх теплоизоляции можно добавить слой фольги, а все стыки обработать особой лентой.
- Если не будет зазоров, то пользоваться парной можно будет длительное время и без ущерба семейному бюджету.
- Особо тщательно стоит изолировать потолок, поскольку основная потеря тепла происходит через него.
Проект сауны – это первый шаг к строительству банного сооружения. Если при его разработке не лениться, то он поможет воплотить все ваши идеи в жизнь. Именно грамотно проведённые расчёты и правильный чертёж позволят подобрать наиболее подходящее решение для парной.
Требования к лакокрасочным материалам для бани
Лакокрасочные материалы, которые предполагается использовать в помещении с повышенной влажностью, должны обладать особыми свойствами.
К таким свойствам относятся:
- влагоустойчивость;
- устойчивость к влиянию различных температур;
- нетоксичность;
- противогрибковые свойства;
- устойчивость к механическим повреждениям.
Краски выбираются также и в зависимости от того из какого материалы сделан пол. Если это дерево, то рекомендуется выбирать цвет лакокрасочного покрытия такой, чтобы он подчеркивал естественный рисунок дерева, не перекрывая его.
С покраской комнаты отдыха разобрались. А чем покрасить пол в бане в парилке? Обрабатывать полы в парилке лакокрасочными материалами специалисты не советуют. Однако для снижения влияния влаги на деревянные поверхности разрешается использовать водоэмульсионные краски. В их составе не входят вредные химические вещества, которые при больших значениях температуры в бане могли бы выделяться.
Баня в два этажа
Двухэтажная баня – это, скорее больше жилое, чем оздоровительное здание, так как второй этаж и бо́льшая часть первого этажа практически всегда отводится под жизненно необходимые помещения, которые нужны и без наличия бани в хозяйстве. Очень редко оба этажа отдаются именно под помещения бани и все, что с ней может быть связано.
Второй этаж может строиться как отдельный полноценный этаж, как мансарда или как жилое чердачное помещение. В данном проекте это – мансарда, в которой будут отдыхать гости. То есть, второй этаж бани служит гостевым домиком. Количество внутренних перегородок определяет, какие помещения вы будете планировать.
Это может быть одна или две спальни с комнатой отдыха, а может быть просто большой холл с диваном для сна и отдыха после бани. Но принимать гостей на несколько дней вовсе не обязательно, и в таком случае из второго этажа можно просто сделать игровую комнату с биллиардом или оборудовать чилаут с домашним кинотеатром.Двухэтажная баня 6 × 6 метров
Отделка бани
Любой бетоносодержащий пеноматериал для создания бани уязвим для влаги – даже самый дорогой. Из этого следует, что гидроизоляция (защита от проникновения воды) является делом первостепенным.
Сама водонепроницаемая изоляция поверхности пеноблочных стен бани производится путем пропитки их гидрофобизирующими составами, дополненной изнутри прокладыванием специализированной защитной пленки.
Создание пенобетонной бани зачастую предполагает внешнюю отделку в эстетических целях. Оптимальный метод наружного облицовывания для пенобетона – новейшие проветриваемые фасады навесного типа, дающие излишку влаги из толщи блоков удаляться в атмосферу. Наиболее подходят для этого такие типы сайдингов (негорючих материалов для облицовывания стен), закрепляемые на каркасы:
- цокольные сайдинги;
- виниловые сайдинги.
Внутренняя отделка
Внутри баню зашивают лесоматериалом, покрывают синтетическими красками поверх штукатурки или выкладывают керамоплиткой. Многим людям приятно, если в бане чувствуется древесный запах. Потому и обшивка лесоматериалом пеноблочных стен изнутри довольно популярна. Но не любое дерево годится для бани из-за ее специфического влажно-температурного устроения. Наилучшие для этой цели – хвойные, сосна или ель (кроме парной). Но в редких случаях они могут вызвать аллергию.
Для обшивания парилки следует применять осину или липу, являющиеся замечательными термоизоляторами и не раскаляются при высоких температурах
Важно, чтобы избранный лесоматериал был высокого качества, и не возникало впоследствии каких-то перекосов из-за повышения сырости. Также перед обшивкой древесину надо обработать, удалив внешние слои, максимально предрасположенные к нежелательному воздействию воды
Их срезают и покрывают уже подготовленное дерево специализированным водонепроницаемым изолирующим составом.
Так, за довольно краткое время и без лишних усилий из пеноблоков сооружается прочная, легкая, теплая и экологически чистая баня, которую можно назвать достойной преемницей традиционных бревенчатых парных.
Размеры строений
Современная банька представляет собой не только парилку, помещение для мытья, но и целый комплекс, способный совмещать в себе еще и комнату отдыха, кухню, туалет, небольшую спальню. Такое строение при необходимости способно стать полноценным летним жильем. На банной террасе разместится мангальная зона, камин, даже небольшой бассейн.
При составлении плана важно учитывать множество правил, принципов строительства подобных сооружений. Минимальная комфортная площадь парилки – 9-11 метров, высота – от двух
Двери и окна делаются на южной, в крайнем случае – восточной стороне, чтобы минимизировать потери тепла. Все электроприборы, провода, розетки, выключатели, если они предусмотрены, должны иметь защиту от влаги, во избежание поражения током при их неисправности.
Выбор подходящего проекта зависит от того, насколько большая территория имеется вокруг дома:
- 6 на 9 метров – «классические», оптимальные размеры баньки на просторном дворе. Гостевая зона здесь настолько велика, что вместит не только семью из четырех-шести человек, но и с дюжину друзей. Для обеих зон рекомендуется возвести общий фундамент, можно даже организовать второй этаж: тогда внизу будет сауна и сама веранда, наверху – бильярд или комната отдыха, туалет;
- пристроенная к жилому дому баня имеет размеры 6 на 6 либо 5 на 6 метров – такие пропорции смотрятся гармонично на любом стандартном участке. Сооружение позволяет значительно увеличить площадь дома, создав уютное место под навесом для посиделок с родными, друзьями. Несомненный плюс здесь – дополнительная защита от холода самого здания;
- 4 на 4 или 4 на 4,5 метров – также типовая банька, состоящая из парилки, купели, зоны отдыха. Веранда располагается на собственном фундаменте – она обычно выполняется открытой, что не очень удобно, при условии, что вход сюда производится с улицы. В некоторых вариантах сооружение делается крытым или же часть комнаты переделывается под небольшой предбанник;
- в банном проекте 4 на 6 метров тамбур предусмотрен сразу, так как предполагается использование постройки в осенне-зимний период. Душ здесь не совмещается с парилкой, но размера они практически одинакового – последняя всегда немного больше, так как должна вместить не менее двух-трех человек одновременно;
- типовая банька 5 на 6 метров имеет выступающую террасу, огороженный предбанник, занимающий совсем немного места. Веранда оформляется как пристройка, иногда выполняется Г-образной формы, что позволяет удобно разместить большую компанию, обустроив удобный мангальный уголок, каминную или чайную зону;
- в проекте бани 6 на 6 метров имеется просторная парилка, душ, раздевалка, тамбур, место для отдыха или даже небольшая спальня. Здесь же можно оборудовать комнату для курения. Терраса выполняется закрытой или открытой.
Баня: планировка и разделение общей площади на функциональные зоны
Если раньше бани состояли всего из одного помещения, то современные варианты этих сооружений включают несколько комнат. В их числе может быть моечная, предбанник, зона отдыха, бассейн, бильярдная и т. п. Чтобы в будущем владельцу не приходилось прибегать к перестройке и корректировке здания, еще на этапе проектирования необходимо внести в чертежи бани все важные пометки. Особого внимания заслуживают следующие моменты:

Для удобства современные бани включают в себя несколько функциональных зон
- планировка внутренних помещений;
- система водоснабжения;
- разводка электросети;
- канализация и система стоков.
Разработка плана бани с учетом условий дачного участка
Чтобы создать идеальные условия для отдыха в бане, нужно учитывать некоторые нюансы, которые позволят избежать неприятностей в процессе эксплуатации помещения. Желательно, чтобы зона строительства располагалась на почвах с низким уровнем пролегания грунтовых вод. Перед тем как приступить к разработке проекта, нужно сразу же исключить все участки, которые не соответствуют этому условию.

Проект бани размером 5 на 7 метров с открытой террасой
Если на территории имеется колодец, то расстояние между ним и баней не должно быть менее 5 м. Минимальный разрыв между парилкой и жилым зданием составляет 8 м. Чем дальше от бани будет размещаться компостная яма и туалет, тем лучше. Специалисты советуют делать вход с южной стороны. В зимнее время здесь образуется меньше сугробов, поэтому исключается вероятность блокировки доступа к двери. Лучше, если окна будут смотреть на запад, что будет способствовать проникновению в помещение достаточного количества солнечного света.
Если на дачном участке имеется водоем, построив баню в 15-20 м от него, можно использовать его вместо бассейна. Кроме этого, наличие реки или озера поблизости от сооружения позволит обеспечить систему подачи воды.

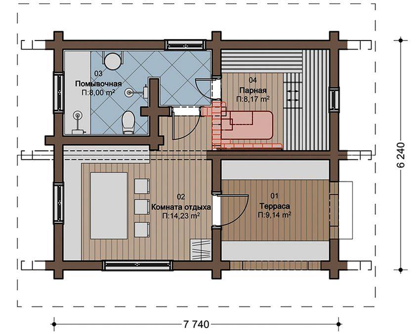
Проект бани размером 7,74 на 6,24 метра
Для небольших участков (3-6 соток) подойдут проекты бань 3 на 3, фото таких построек в изобилии присутствуют на сайтах строительных компаний. Даже в таких компактных строениях основным помещением остается парная. Под организацию этой комнаты следует отвести максимально возможное количество площади – около 8 м². Этого достаточно для того, чтобы установить 2-3 лежака (полки) и поставить печь-каменку.
Другие помещения могут быть включены в планировку бани 3х4 м и более (по желанию). Сооружение может использоваться по назначению даже при отсутствии бильярдной или санузла. Баня же без парилки существовать не может. По этой причине разделение внутреннего пространства на функциональные зоны в первую очередь зависит от размеров проекта.

Строить бани рекомендуется на расстоянии минимум 8 м от жилого сооружения
Если же хочется дополнительных удобств, в проект бани 3 на 4 м можно включить небольшую душевую комнату или помывочную. После парилки здесь можно будет смыть с себя грязь и освежиться. Для типовых проектов характерно наличие комнаты отдыха, которая будет эксплуатироваться в перерывах между сеансами пара. Для ее организации потребуется 4,5 м².
Нелишними будут и другие помещения, например, раздевалка или тамбур. Они достаточно компактны, чтобы поместиться в проекте бани 5 на 5 из бруса наряду с основными комнатами.

Проект бани размером 6х6 м со вторым мансардным этажом
Особенности эксплуатации
Баня, как и всякая постройка на дачном участке, нуждается в постоянном уходе, без которого она быстро разрушится. Могут подгнить нижний край стен и пол, зимой — замёрзнуть слив и трубы для воды, завестись грибок и древоточец. Сауна просто загрязняется от эксплуатации. К счастью, сауна с электрической печью лишена главной проблемы русской парной — копоти на стенах, как и появления грибка от влажности. Есть много методов по ликвидации этих проблем.
Сейчас банные помещения после каждого использования нуждаются в уборке с помощью специальных современных моющих средств. Типовые моющие средства годятся далеко не все — смыть их идеально не получится, и они могут дать нежелательные испарения. Есть большой ассортимент моющих средств именно для саун.
Моющее средство Supi saunapesu для саун
Появление грибка маловероятно, но все же возможно, если пиломатериал был им заражён. Грибок и плесень удаляются специальными составами для саун.
Защита сауны от плесени
Точно так же может завестись древоточец, и при малейших признаках его работы нужно принимать немедленные меры.
Защита сауны от насекомых
Если вы будете соблюдать эти несложные правила, у вас всегда будет чистая и благоустроенная сауна.
Проект постройки из пеноблока
Выбор блоков ячеистого бетона в качестве основного стройматериала неслучаен. Этот экономичный современный строительный материал характеризуется целым рядом преимуществ, в сравнении с другими стеновыми материалами, такими, например, как кирпич, камень или деревянный брус.
Простота механической обработки
Среди преимуществ отметим следующее:
- Цена пеноблоков невысока, что благоприятно сказывается на себестоимости всего объекта;
- Дом, возведенный с использованием этих блоков, характеризуется небольшим весом и, как следствие, малой нагрузкой на фундамент;
- Стенам из пеноблоков присуща низкая степень теплопроводности, благодаря чему можно будет сэкономить на отоплении;
- Пенобетон и стройматериалы на его основе за счет пористой структуры «дышат». Благодаря этому, дома сохраняются оптимальные параметры влагосодержания в воздухе.
- Блоки из ячеистого бетона просты в обработке. Они легко сверлятся и пилятся, в результате чего, существенно упрощается и удешевляется строительный процесс.
Чистовая кладка из пеноблоков без лишних усилий
Пример проекта 1
В качестве примера рассмотрим наиболее популярные проекты домов из пеноблоков с баней. На рисунке №1 мы можем видеть типовое решение, пригодное для строительства небольшого дачного дома с парилкой и душевым отделением.
Преимуществом такого планирования является то, что на ограниченной площади можно разместить не только небольшую баню, но и полноценную комнату отдыха и даже террасу для комфортного времяпровождения в тёплое время года (см.также статью «Баня с верандой: особенности проектов»).
Учитывая то, что дом запланирован к постройке из пенобетона, в качестве фундамента можно будет применить монолитное ленточное малозаглубленное основание со сторонами 6 и 8 метров.
Разумеется, такой небольшой домик нельзя рассматривать в качестве полноценного жилья, но как постройка для проведения выходных и отпусков за городом такой дом выглядит очень привлекательно.
Пример проекта 2
Аналогичное сооружение представлено на рисунке №2. Этот проект по размерам немного просторнее, чем первый образец, но также включает только те помещения, которые необходимы для краткосрочного временного проживания и для эксплуатации моечного отделения и парилки.
Преимуществом проекта является то, что все помещения имеют сходные размеры, следовательно, воспользоваться парилкой и душевой можно будет в комфортных нестесненных условиях.
Благодаря относительно небольшим габаритам и малому весу строительных материалов, этот проект также может быть построен своими руками на малозаглубленном фундаменте ленточного типа для бани.
Пример проекта 3
Впрочем, все эти проекты домов и бань из пеноблоков небольшие и пригодны исключительно для краткосрочного проживания. Рассмотрим план полноценного дома с парилкой и душевой.
В этом проекте предусмотрено наличие полноценной гостиной и комнаты отдыха, кроме того здесь есть кухня и просторный холл. Но, что самое главное, в проекте предусмотрена сауна, моечное помещение и отдельный санузел, что делает временное или всесезонное пребывание в доме наиболее комфортным.
Где заказать проект
Где можно заказать проект, и нужен ли он вообще?
Как уже было сказано, наличие проекта гарантирует целый ряд преимуществ, среди которых:
- Наличие общего представления о том, как строить запланированное сооружение;
- Удобство планирования сметы стройматериалов и, как следствие, возможность предотвращения их перерасхода;
- Возможность скорректировать сроки реализации строительного процесса, что оборачивается повышением производительности труда;
- Отсутствие трудностей при регистрации недвижимости и при постановке ее на учёт в кадастровых органах.
Проектная документация это, по сути, инструкция по которой строится дом. Поэтому в этом плане, наряду с расположением комнат и отдельных хозяйственных помещений, должны содержаться сведения о толщине стен, о способе обустройства пола, кровельной системы и т.д.
Таким образом, из всего вышесказанного можно заключить то, что разработкой, составлением, а впоследствии и утверждением проектной документации должны заниматься исключительно профессионалы с профильной квалификацией.
Заказать проекты жилых домов из пеноблоков с баней можно непосредственно в сети интернет. Для этого достаточно оставить заявку на сайте профильных проектных бюро.
Как правило, разработка чертежей выполняется с учётом всех нормативных требований и исходя из личных пожеланий заказчика. Бесплатной разработка проекта вашего нового дома будет в том случае, если в качестве подрядчика будет выступать строительная организация.
Преимущества постройки бани размером 6х4 или 4х4м
Большинство проектов бани делятся на две категории. К первой относят целые банные комплексы, от 30 квадратов и выше. Только под предбанник закладывают помещение в проекте бани 3 на 3 м, под парилку и душ – 6х4, остальная площадь – это комната отдыха, предбанник и даже бассейн. Ко второй категории причисляют бани 4х4 или 4х6. Собственно, такой проект только и можно считать настоящей дачной баней, на площади в 16-20 м2 поместится парилка в 6-9 м2, остальные метры уйдут на раздевалку, предбанник и душевую кабину.

Большинство настоящих дачников предпочитают выбирать проекты бани не более 6х4 м, этого вполне достаточно, чтобы полноценно париться, а для отдыха и беседы в приятной компании есть дача.
Кроме того, проект бани 6 м на 4 м позволяет упростить постройку сразу по трем пунктам:
- Небольшие габариты коробки позволяют уместить строение 6х4 м практически в любом уголке дачного участка, независимо от того, каким бы насыщенным не был проект застройки;
- Использование для постройки бани легких материалов и простых фундаментов, в большинстве проектов под малогабаритную баню 6х4м или даже 4х4м используют свайный или столбчатый фундамент, а в качестве материала стен – пенобетон, деревянный брус или бревно;
- Затраты на постройку бани 6х4м, без учета на постройку крыши, составят примерно 40% от проектов 6х6м, только из-за того, что большую часть работ можно выполнить своими руками.
К сведению! Большинство специалистов считают, что качество бани зависит, в первую очередь, не от размеров парилки или наличия комнаты отдыха. Хорошая баня – это, прежде всего, удачная печка, продуманная компоновка и хорошая теплоизоляция помещения.

Вроде бы дело нехитрое, но халтуры в составлении проектов бань предостаточно, особенно, если помещение строят, как комплекс для отдыха, и лишь в качестве дополнения присутствует парилка с душем
Так что бани проектов 6х4 м или 4х4 м могут парить значительно лучше, если, конечно, уделить самой парилке основное внимание
О необходимых помещениях
Но даже самая миниатюрная баня не может состоять из одной парилки – это просто неудобно. Поэтому в небольших проектах основное помещение делят перегородками на несколько комнат, которым отводят ту или иную роль. Не обязательно делать несущие перегородки и закладывать под них фундамент – достаточно разделить площадь легкими деревянными перегородками, как это показано в проекте ниже. Сама планировка бани достаточно просторная – 4 х 6 метров.Разделение бани на помещения Разделение основной постройки на несколько помещений позволит (и это главное) быстро, эффективно и качественно прогревать парилку, не перегревая при этом остальные комнаты, особенно – комнату отдыха. Кроме того, план бани нужно тщательно продумать на предмет свободного доступа ко всем помещениям.
Как выбрать место для строительства бани.
Один из самых важных моментов — выбор расположения будущей постройки. Место должно удовлетворять как существующему законодательству, так и удобству использования. При выборе могут помочь основные рекомендации:
- если рядом находится водоем — не стоит располагать баню слишком близко к нему, так как постройке будет угрожать затопление;
- необходимо определиться — как будет располагаться баня относительно дома: отдельной постройкой или будет пристроена к нему, так как каждый вариант имеет свои положительные и отрицательные стороны;
- считается, что баню лучше строить на заднем дворе, в относительном уединении;
- стоит обязательно предусмотреть при строительстве обязательную вентиляцию, а также предусмотреть отведение сточных вод;
- крайне не рекомендуется определять местоположение рядом с проходящей рядом дорогой;
- при размещении строения необходимо учитывать стороны света и направление ветра: лучшее место — южная часть участка, защищённая от ветра, чтобы он не мешал отдыхающим, окна лучше располагать выходом на запад;
- желательно, чтобы баня находилась в некотором удалении от других построек, а если она является пристройкой к дому, обязательно при строительстве нужно соблюдать правила пожарной безопасности, как, впрочем, и при возведении отдельно стоящего здания;
- при определении размещения бани и её размеров необходимо соблюдать установленные правилами расстояния от границ участка, чтобы соседи в дальнейшем не испытывали дискомфорта и не предъявляли претензий хозяину;
- рекомендуется соблюдать расстояние до водозабора (колодца или скважины) — не более 20 метров.

Раствор для кладки печи
Кирпич кладется на глиняный раствор. Стоит заметить, что для красного кирпича используется красная глина, а если печь планируется строиться из шамотного кирпича, тогда стоит запастись шамотной глиной.
Раствор готовится из речного песка, где фракция зерна составляет от одного до полутора миллиметров и глины в соотношении 2,5 к 1. В раствор добавляется вода в том количестве, которое понадобится, чтобы получилась нужная консистенция кладочного раствор. Если нет желание или возможности приготовить данный раствор самостоятельно, тогда можно приобрести уже готовую печную смесь в специализированном магазине.
Готовится раствор следующим образом:
- Нужное количество глины для замеса замачивают в холодной воде на 24 часа.
- Полученную массу делят на пять равных частей.
- В каждую часть добавляется песок в той пропорции, которая необходима. Это может быть ¼, ½, ¾ от общей массы песка.
- Все части соединяются и замешиваются до однородного состояния, после чего полученная смесь оставляется на три-четыре часа для того чтобы отошла вода.
Все печи без исключения состоят из фундамента, массива в который входит топка и воздуховод и, конечно же, дымохода.
Фундамент
Данный элемент печи играет важную роль, ведь это основание на котором будет стоять печное сооружение. В некоторых случаях его делают отдельно от основного основания дома. И это не случайно ведь:
- Печь довольно тяжелая и во время просадки грунт будет значительно ниже, нежели под основным зданием.
- Так как температура в печи нестабильна, да и сама печь может давать подвижки, а это очень опасно для стен дома.
- Отдельное основание под печное сооружение дает приемлемый отступ между печкой и основным строением. Это понижает риск возникновения пожара.
Помимо прочего в таком положении ее легче будет обслуживать: осуществлять ремонтные работы, переделывать или вносить коррективы в случае необходимости.
Изготавливается основание для печи из кирпича или бута, которые кладутся на раствор либо известковый, либо на цементный.
При строительстве основания стоит учесть, что оно должно быть на пять – семь сантиметров больше основания самой печи со всех сторон. Для углубления в землю можно взять около 75 сантиметров.
Если здание одноэтажное, тогда хватит и пятидесяти, ну а если это двухэтажное строение тогда стоит углубить основание на один метр.
Массив
Среди элементов, которые входят в массив печи можно выделить – корпус, топку и дымоход. Для кладки используется красный кирпич, а для облицовки используется тугоплавкий. Сам корпус и дымоходы выкладываются на раствор из огнеупорной глины и песка. В облицовке используется состав из шамотного порошка с глиной, огнеупорной. Толщина швов должна быть минимальной, не более пяти миллиметров.
Перед тем как начать строить печь необходимо красный кирпич замочить в воде минут на пятнадцать. Делается это для того, чтобы кирпичи не тянули воду из кладочной смеси, огнеупорный кирпич же просто протирается влажной тряпочкой.
В ходе работы необходимо выполнять ряд условий:
- Проверка горизонта и диагоналей с целью предупреждения наклона. При его наличии придется переделывать верхние ряды и ликвидировать ошибку.
- Наполненность швов раствором. Печь необходимо периодически очищать при помощи тряпки от лишнего раствора.
- Дымоход нужно будет протирать мокрой кистью для удаления грязи и раствора.
Как советуют опытные печники, перед тем как выложить ряд, его необходимо продублировать в отдельном месте без применения раствора. Такой ход позволит увидеть все возможные ошибки и вовремя их нейтрализовать. Помимо прочего в таком виде резать кирпич намного легче и быстрее.
Труба
Данный элемент печи кладется исключительно из красного полнотелого кирпича. На уровне чердака в качестве связующего элемента используется раствор из цемента и извести, а наружную лишь на растворе из цемента, ведь глину со временем просто вымоет дождь.
Там где труба будет соприкасаться с деревянным перекрытием делается уширение, которое не прилегает к горючим материалам и в образовавшее отверстие засовывается пакля или асбест пропитанные глиняным раствором.
Сверху на трубу надевает дефлектор, изготовленный из металла
Он не только не дает проникнуть внутрь осадкам, но и гасит образующие искры, что очень важно с точки зрения противопожарной безопасности
Почему именно кирпич?
Баня – одно из древнейших изобретений человечества, но ее актуальность в настоящее время совсем не уменьшается. Более того, массовое строительство индивидуального жилья привело к возросшему спросу на эти постройки. Большая часть их возводится из бревна или бруса.
Интересный вариант каменной постройки
Но все чаще стали строиться основательные сооружения из других материалов, в частности из кирпича. В чем достоинства таких бань?
Основные плюсы использования керамики
Дерево – отличный материал для бани, но он имеет свои недостатки.
В чем же преимущества кирпичных строений перед деревянными:
- Кирпич прогревается гораздо медленнее, чем дерево, но и держит тепло он дольше. Для банных строений это немаловажный момент.
- Если основной дом возведен из кирпича, то постройка кирпичной бани органично впишется в общий дизайн.
- Из кирпича можно возвести здание практически любой формы, в том числе с закругленными углами. Мелкие керамические элементы дают большие возможности, чем крупноразмерные деревянные.
- Можно выполнить самую необычную планировку помещений.
- Эстетическая составляющая качественных материалов часто тоже является преимуществом.
- Внешнюю отделку таких стен можно выполнить при помощи различных материалов.
- Стойкость к огню у каменных материалов несравнимо выше, что является весьма важным моментом для банных построек.
- Долговечность кирпичной постройки чаще всего гораздо больше, чем у деревянных зданий.
- Не требуется ждать усадки стеновых конструкций. Внешнюю и внутреннюю отделку можно производить сразу после возведения постройки.
Баня и гостевой домик – отличное сочетание
Каждый выбирает наиболее важные для него моменты, исходя из индивидуальных требований.
Недостатки материала
Однако стоит учитывать и некоторые минусы применения кирпича для банных построек:
- Требуется хорошая гидроизоляция стеновых конструкций – воздействие высокой температуры и влажности губительно воздействует на кирпич.
- Кроме того, подобная постройка требует обязательного утепления, если стены возводятся сплошным способом. Приемлемо в этом случае выполнять облегченную кладку, когда между кирпичами укладывается или засыпается слой утеплителя. Это также снизит нагрузку на фундамент и затраты на его устройство.
- Цена на такую постройку может оказаться гораздо выше, чем обойдется деревянное здание.
- Возведение бани из кирпича своими руками требует определенных профессиональных навыков.
Вариант облегченной кладки – инструкция по устройству
Чаще всего для постройки применяется обычный керамический кирпич: полнотелый и пустотный. Если планируется отделка, то можно использовать крупноформатные блоки — срок строительства существенно сократится. Также применяются силикатные изделия.









![11 рекомендаций по воплощению готовых проектов бань из пеноблоков [+фото]](https://ceramica-sp.ru/wp-content/uploads/f/6/3/f63983c4c9bada5f848dc808e1d4ffb9.jpeg)



![Проект бани с бассейном [100 фото], различные планировки](https://ceramica-sp.ru/wp-content/uploads/b/a/7/ba77adc9b82df8b94d01b6da0aa23790.jpeg)





![Проект бани [87 фото]: типовые чертежи и схемы конструкций](https://ceramica-sp.ru/wp-content/uploads/5/a/8/5a84ea8a578e6a08c4bfee0ee3ae0a5a.jpeg)















