Какие возможности у квартиры такого метража?
30 квадратов — данные хоть и скромные, но не безнадежные. Во время ремонта в такой квартире реально:
- организовать полноценную кухню со столовой, которая при необходимости может превращаться в рабочее место;
- оформить гостеприимную кухню-гостиную: именно в маленьких квартирах-студиях они самые уютные, камерные, располагающие к общению;
- обустроить обособленную спальню, даже если в ней не будет окон: например, нарастить стены, установить двери с матовым стеклом, пропускающими дневной свет, и предусмотреть принудительную вентиляцию.
О корпусной мебели
Готовые шкафы и гардеробные для малометражки не подойдут: есть большой риск не только не вместить все необходимое, но и потратить впустую часть свободного пространства.Оптимальный выбор — мебель под заказ по эскизам дизайнера. Подогнанные под размеры и пропорции пространства конструкции помогут выгадать несколько лишних метров для гостиной или спальни, а пространство, отведенное под шкафы, будет расходовано с максимальной экономией. Плюс фасады можно слить в один тон со стенами, сделав их как будто продолжением друг друга.
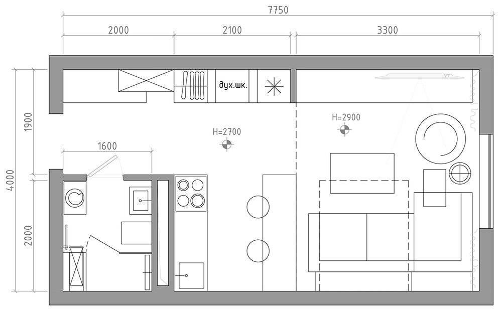
Интерьер квартиры-студии 30 кв. м.
Стеновое и потолочное оформление разделяет помещение на две функциональные зоны: кухню и гостиную-спальню. В кухонной зоне потолок и стены традиционно окрашены белой штукатуркой. Спальную зону дизайнеры оформили в индустриальном стиле, оставив голые бетонные стены. Рядом с телевизором поставили полуабстрактную картину, поддерживающую общую цветовую гамму и настроение помещения. Связующим звеном между двумя зонами являются светильники: черные, как и вся кухня, они украшены неким подобием абажуров в виде пирамид, относящих нас к индустриальному оформлению спальни.
Выбор подходящего интерьера для разных комнат
Выбор стилистического оформления квартиры площадью 100 кв. м во многом зависит и от ее планировки. Дизайнерский проект для студии будет сильно отличаться от дизайна двухуровневой квартиры, один из вариантов ее оформления представлен на фото. Не всегда удается сформировать единое стилистическое пространство для всех помещений, если вкусы у членов семьи не совпадают. Функциональное предназначение каждого из них тоже накладывает свой отпечаток. Если квартира состоит всего из двух помещений – спальни и объединенной в студию гостиной и кухни, подойдут лофт, хай-тек. Большая площадь это позволяет, тем более что во многих квартирах уже запланирована гардеробная.
Когда комнат больше, количество вариантов для выбора стиля возрастает. Для тех, кому важны качество и роскошь в отделке, подойдет классика или ар-деко. Особенно уместны они в гостиной. В соответствии со стилем подбираются и мебель, светильники, текстиль, аксессуары.
Есть несколько правил дизайна для гармонизации пространство, если комнаты оформлены в различных стилях и выполняют каждая свою функцию:
- одинаковый материал для пола во всех помещениях;
- светлая цветовая гамма.
Преимущества и недостатки квартиры студии 30 м2
Даже самая маленькая квартира-студия будет казаться просторной по сравнению с многокомнатными планировками. По ней можно свободно перемещаться, иметь обзор всего пространства с одной точки. Отсутствие перегородок позволяет иметь в поле зрения маленького ребенка, домашних животных, беспрепятственно общаться с гостями и готовить угощение одновременно. К преимуществам однокомнатных студий до 30 м2 можно отнести следующие факторы:
- Перепланировка, проведение ремонтных, отделочных работ не требует больших финансовых затрат;
- Небольшие коммунальные платежи;
- Простота обслуживания;
- Доступная цена на рынке малогабаритной недвижимости;
- Возможность самостоятельного зонирования;
- Равномерное освещение всей квартиры.
Из недостатков перепланированного жилья можно отметить неудобства проживания большой семьи. Такая комнатная обстановка подойдет максимум для молодой пары с маленьким ребенком. Личное пространство для отдыха и времяпровождения обеспечить будет невозможно. Также в студиях отсутствует внутриквартирная звукоизоляция, запахи с кухни разносятся по всему помещению, даже при наличии хорошей вытяжки.
Стильные идеи для оформления современного жилья
Проект трехкомнатной квартиры сталинки подразумевает перепланировку, которая направлена на расширение пространства. Хорошее решение – гостиная-студия, которая объединена с коридором. В таком случае гости сразу попадают в жилую комнату. План такого дома можно увидеть на фото:
Стильный дизайн квартиры на 80 кв. м содержит простоту, лаконичность, правильное освещение. На кухне и в гостиной необычно смотрится японская стилистика с использованием бамбуковых перегородок, низких светильников. Спальню можно оформить в стиле барокко, а в кабинете сочетать этнические и классические мотивы.
Не рекомендуется перегружать просторное помещение большим количеством декора. Используйте что-то одно: картины на стенах, навесные стеллажи, большие вазоны с цветами, торшеры. На фото представлено сочетание яркого дивана и комнатных растений разного вида в горшках:
Дизайн трехкомнатной квартиры 80 кв. м требует больших затрат. Поэтому перед началом ремонта рекомендуется четко распланировать стилистику дома, предназначение каждой комнаты, количество мебели и декора.
Преимущества и недостатки квартиры студии 30 м2
Даже самая маленькая квартира-студия будет казаться просторной по сравнению с многокомнатными планировками. По ней можно свободно перемещаться, иметь обзор всего пространства с одной точки. Отсутствие перегородок позволяет иметь в поле зрения маленького ребенка, домашних животных, беспрепятственно общаться с гостями и готовить угощение одновременно. К преимуществам однокомнатных студий до 30 м2 можно отнести следующие факторы:
- Перепланировка, проведение ремонтных, отделочных работ не требует больших финансовых затрат;
- Небольшие коммунальные платежи;
- Простота обслуживания;
- Доступная цена на рынке малогабаритной недвижимости;
- Возможность самостоятельного зонирования;
- Равномерное освещение всей квартиры.
Из недостатков перепланированного жилья можно отметить неудобства проживания большой семьи. Такая комнатная обстановка подойдет максимум для молодой пары с маленьким ребенком. Личное пространство для отдыха и времяпровождения обеспечить будет невозможно. Также в студиях отсутствует внутриквартирная звукоизоляция, запахи с кухни разносятся по всему помещению, даже при наличии хорошей вытяжки.

Перепланировать однушку в квартиру-студию в кирпичном доме очень сложно, особенно, если она находится на нижних этажах и имеет несущие стены. Для панельного, блочного варианта такие изменения планировки вовсе не предусмотрены.
Варианты зонирования квартиры-студии 30 кв м
Самый легкий, но затратный способ зонирования, предполагающий предварительную планировку квартиры 30 кв м с учетом пожеланий новоселов, – построение новых стен. Этот способ не самый практичный, так как квартира-студия будет выглядеть еще меньше.
Отличным разграничителем пространства может послужить перегородка.
Зонирование кухни
В качестве инструмента для зонирования может выступать мебель: кухонный гарнитур, диван или стол. Такой метод не избавляет собственников от соседства от запахов, доносящихся с кухни. С этой проблемой способны справиться стены.
Более яркие источники света устанавливают в центре гостиной, а в кухонную и спальную зону, выбирают подсветку, имеющую рассеянное свечение.
Другие варианты зонирования комнат
Чтобы ограничить пространство без проведения ремонта, рекомендуется:
- Установка фальш-стены.
- Разделение зон при помощи стеллажа или шкафа.
- Использование ширмы.
Для квартиры-студии в качестве зонирующего элемента уместна различная мебель или аксессуары.
Элементы плана
- Размерная часть. В ней указывается площадь помещения, окон и дверей, высота потолков, размеры каждой отдельной стены и прочие параметры.
- Демонтажный план. Используется в том случае, если есть стены, которые нужно убрать, или требуется перенести дверные проемы. Обязательно делается часть возводимых конструкций, если предполагается постройка перегородок.
- План коммуникаций. На схеме показывается разводка труб и расположение сантехники, размещение светильников, электрических приборов, розеток и выключателей, расположение обогревателей и бытовой техники, которая требует подвода воды, постоянного питания.
При разработке плана необходимо обратить внимание на количество окон. Если осуществляется дизайн квартиры-студии 30 кв
м, расположенной с северной стороны, нужно добавить источники освещения и оставить оконный проем максимально открытым. С южной стороны – использовать холодную гамму, продумать расположение карниза.
Идеи оформления интерьера салона красоты
При формировании любого из интерьеров, необходимо использовать различные принципы. Они совершенно не схожи с теми, чем руководствуются при обустройстве помещения в жилом доме. Огромного внимания требует планировка и декорирование. Кроме того, ведётся учет материалов отделки и достаточности освещения
Также рекомендуется обращать внимание на такие особенности, как стиль и цветовая гамма

Интерьер студии красоты с зеркальными панелями Источник individdesign.ru

Салон красоты с тематическим декором Источник dm-interiors.com.ua

Создание дизайна в небольшом салоне красоты Источник initial.com.ua
Особенности оформления интерьера однокомнатных квартир 30 кв м
Практичный интерьер однокомнатной кв 30 кв м возможно создать даже без помощи профессионалов. Основным секретом успеха в этом деле является грамотная планировка помещения. Имея небольшую хрущевку или однушку в новостройке, хозяева могут воплотить в жизнь несколько вариантов оформления.

Чаще всего, площадь 30 кв. м имеют стандартные однокомнатные «хрущевки».
Первый вариант – оставить все как есть. Такой вариант подойдет для молодой пары с разными биоритмами. Пока один член семьи будет отдыхать в спальне, второй может посмотреть фильм или перекусить на кухне. Второй вариант – квартира-студия. Если биоритмы совпадают, детей еще нет, квартира-студия – отличное решение.

Помещение можно выгодно оформить, сделав ремонт в современном стиле, разместив в нем всю нужную мебель и отделив функциональные зоны.
Обратите внимание! Чтобы снести стены в квартире, нужно получить официальное разрешение. Демонтажные работы стоят недешево
Третий вариант – установка перегородки. Маленькую однушку можно превратить в двухкомнатную квартиру. Комнаты получатся крохотными. Однако это самый удачный вариант оформления жилья для семьи с ребенком.

Правильно подобрав дизайн квартиры, можно наполнить ее уютом.
Планировка и составление дизайн-проекта
Пространство небольшой студии 30 кв. м легко расширить и сделать уютным с помощью нехитрых дизайнерских приемов. Любое начинание, особенно касающееся кардинальных видоизменений в помещении, должно опираться на заранее подготовленный подробный план. Можно сотрудничать с профессиональными дизайнерами или довериться своему вкусу.
Если перепланировка намечается в двухкомнатной хрущевке, необходимо найти план постройки и убедиться в отсутствии несущих стен. Создание основного проекта должно происходить с участием следующих документов:
- Обмерный план. Площадь квартиры, прилагаемые составляющие элементы измеряются с помощью современного оборудования.
- Записи о возводимых конструкциях. Упрощают обустройство вставных деталей, вновь построенных арок, ниш.
- План демонтажа. Указывает на участки, предназначенные к сносу, перепланировке.
- Схема потолка и стен с отметками о размещении электрических точек. В документе отражен путь прохода новой проводки, розеток, выключателей, потолочных светильников и прочего, купить недорогой кабель ВВГ можно в интернет- магазине.
- Схема разводки труб. Составляется при необходимости перепланировки санузла, добавления новых батарей.
Пространство квартиры-студии до 30 кв. м должно быть светлым. Если есть застекленный балкон, его можно утеплить и сделать рабочую зону или добавить эту площадь к общей. Перед тем как составлять дизайн проект, надо подобрать несколько вариантов эскизов, мебельных групп, цветовых палитр.

При составлении проекта необходимо добиться точного соединения всех деталей в один ансамбль. На небольшой площади малейшее отклонение тона или текстуры будет заметно. Открытая планировка требует грамотной расстановки акцентов. Студия не должна быть перегружена мебелью и бытовыми приборами, следует грамотно продумать скрытую систему гардеробного хранения.
Дизайн интерьера маленькой квартиры 25 кв. м. – фото
Маленькие квартирки – это уютно, скажут те, кто сам не жил на скромных 25 квадратах. Поставил диван – некуда деть шкаф, разместил на кухне хороший холодильник и полноценный гарнитур – а где сидеть, куда поставить обеденный стол? И хотя открытое пространство обычно высоко ценится за счёт непередаваемого ощущения простора, у него есть свои недостатки.

В студии нужно заранее разделить комнату на зоны
Не всегда приятно отдыхать рядом с готовящейся едой, поэтому зонирование необходимо. В предложенном ниже проекте кухонная часть отделена от зала небольшой перегородкой. Она не крадёт квадратные метры, однако эффективно разбивает общую площадь на два функциональных участка.


Отделяем кухню от гостиной с помощью перегородки
Интересная идея – использовать вместо перегородки тумбу, делящую помещение на две части. Эстетично и функционально. Обстановка получается уютной и удобной.


Тумба в качестве перегородки
В проекте интересно решён вопрос прихожей. Обычно в студиях входная дверь ведёт прямо в жилую часть, что позволяет захватить пустующий метраж. С другой стороны, не всем приятно, когда любой входящий сразу попадает в жилую зону. Перегородка позволяет скрыть её от случайных взглядов.


Отгороженная прихожая
Как составить план
При правильном подходе к планировке даже небольшая квартира может стать просторной и уютной. Некоторые дизайнерские приёмы позволяют визуально раздвинуть или расширить существующее пространство. Перед проведением каких-либо изменений в квартире студии необходимо создать план. Для этого можно воспользоваться подсказками специалиста или разработать чертёж самостоятельно, учитывая существующие ресурсы.
Многие владельцы недвижимости обходятся без бумаг, они обсуждают все нюансы перепланировки ещё на этапе строительства жилья. При необходимости создания студии с двухкомнатной квартиры нужно найти план дома и ознакомится с размещением основных строительных конструкций. Демонтаж несущих стен запрещён.
Если пользователь принял решение о перепланировке, он должен принять к сведению следующее:
- Разработать план с нанесёнными размерами всех строительных конструкций.
- Проект демонтажа, где указываются запланированные под снос стены и перегородки.
- План элементов для монтажа. В этом документе указывается необходимость в установке вставных конструкций.
- План размещения розеток, светильников и других электроприборов. Подобные чертежи используются при замене проводки. При планировке студии 30 м кв кабель будет укладываться по новому пути.
- Схема размещения трубопроводов, на которой указаны все дополнительные батареи, а также разводка труб в санузел.
Во время составления плана учитывайте расположение окон. Если свет в квартиру попадает из одного окна, необходимо позаботится о дополнительном освещении, а также использовать светлые тона при декорировании стен. Вся жилая площадь должна хорошо освещаться. Хорошо если в квартире есть балкон, здесь можно сделать зону отдыха или рабочий кабинет..
Варианты дизайн проектов
При зонировании студии 30 кв м не всегда есть потребность демонтировать стены для экономии полезного пространства. Такая квартира может стать идеальным жильём для одиноких людей. При необходимости в базовый план вносят изменения и переоборудуют жильё для семейной пары.
В проекте обычно указывают места установки мебели, помечают участки перепланировки, габаритные размеры квартиры и рабочие зоны. Кроме этого предоставляется информация о вариантах декорирования стен.
Если есть необходимость освежить дизайн помещения, то для этой цели используют программы визуализации. Пользователь вносит в базу данных габаритные размеры помещения и получает результат из нескольких тысяч вариантов декорирования жилья расстановки мебели и многих других деталей. Программа визуализации позволяет увидеть результат перепланировки ещё до начала работ и выбрать наиболее подходящий вариант.
В случае планировки второго яруса создают отдельный план на два этажа .Здесь также нужно предусмотреть размещение мебели и указать все размеры. На втором этаже обычно располагается спальня. Это помещение нуждается в обогреве.
Варианты планировки квартиры-студии
Дизайн с одним окном
Планировка квартиры студии с одним окном проблематична в обустройстве, так как приходится учитывать ограниченное пространство и минимальное освещение. Хорошо, если комната находится на солнечной стороне и большую часть дня свет будет поступать широким потоком.

Единственный верный выход – минимализм. Этот стиль предполагает умеренную «бедность» дизайна, при котором нет необходимости покупать полный комплект мебели, использовать какие-либо элементы роскоши. Простой интерьер, без лоска и блеска. Более того, он позволяет увеличить пространство, как физически, так и визуально. Так как не нужно производить мебелирование, места становится больше, а светлый интерьер зрительно делает комнату просторнее.

В этом случае зонирование не нужно. Достаточно освободить комнату и сделать ее просторнее. Кроме этого, рекомендуется наполнить комнату искусственным светом. Для минимализма подходят точечные светильники. Они вообще не занимают места и дают ровный дневной свет.

Ремонт в студии должен быть самым простым. Отделка минимальная, максимум – белые обои. Любые ниши могут использоваться с умом, например, для выращивания растений. Цвета светлые, чтобы дополнительно увеличить комнату.

В качестве шкафов могут применяться:
- Подвесные полки. В отличие от шкафов, освобождают комнату от лишнего мусора, заставляют использовать минимум вещей.
- Ящики в кровати. Лучше, если бы ложе имело специальные подкроватные ящики, которые позволят хранить одежду, постельное белье и бытовую химию.
- Комоды. Отличная альтернатива шкафам. Очень вместительные, но при этом занимают в трое меньше места.

Студия-кухня
Кухни в квартире часто соединяются с гостиной, с помощью сноса перегородки. В этом случае реально создать комфортное пространство. При этом столовая отлично интегрируется в зал, не теряя своих качеств.

Проект квартиры студии с кухней подразумевает соблюдение некоторых правил:
Лучше всего воспользоваться естественной перегородкой, которая остается после сноса стенки. Однако можно создать ее искусственно. Самый простой способ – барная стойка или островок. Это одновременно и граница, и удобная часть мебельного гарнитура. В квартире должно быть минимум вещей и мебели
Это не позволит захламить площадь, что очень важно при ограниченном пространстве. Но дизайн студии 30 кв м и более может предполагать даже полноразмерные кухонные гарнитуры
По максимуму нужно использовать не широту, а высоту
Не стоит забывать про свободное пространство, которое находится на стенах. Дизайн кухни может подразумевать бесчисленное количество настенных полочек открытого типа. Они почти не занимают места и при этом позволяют разместить кастрюли, тарелки и продукты.
Студия-спальня
Проект студии спальни прост, если придерживаться следующих правил:
- Ограничение спального места. Не нужно оставлять очень много пространства за кроватью. Ее лучше сделать ограниченной одной кроватью или вообще сделать ее трансформерной. Второй вариант позволит оставить все помещение для отдыха и развлечений. Особенно это полезно в том случае, если в квартире живут дети.
- Ограждение стеной. Не стоит мешать гостиную и спальню, так как полученная комната потеряет качество первого и второго. Ремонт квартиры студии не требует возведения фундаментальной перегородки. Достаточно небольшого простенка или даже стеклянной изгороди. Ее будет хватать для полноценного отдыха и даже отдельного сна.
- Диван кровать. Радикальным решением проблемы выступает замена кровати и дивана на их симбиоз. Это позволит одновременно и спать, и отдыхать.
- Встроенная кровать. Если есть ниша, можно поставить кровать туда. Метод встроенной мебели позволяет сохранять место, но в квартире появится полноценное спальное место.

Посмотреть фото, как выглядит интерьер и планировка квартиры студии «спальня + гостиная» можно ниже.
Дизайн студии-зала
Интерьер квартиры с основной гостиной может основываться на условных стенах. Самый простой способ отделить ее – диван, расположенный спинкой ко всей остальной комнате.

Также часто применяется и освещение. В гостиной оно должно быть самым насыщенным и ярким. Лучше всего подходят большие люстры.

В местах перехода от одной зоны к другой приветствуются:
- Зеркальные стенки;
- Мебель;
- Шторы и ширмы.

Экономить место в зале можно с помощью кронштейна для телевизора и ликвидации гарнитура. При совмещении с прихожей, беспроигрышный вариант – низкая мебель. Тумбочки и комоды намного меньше шкафов, но при этом реально экономят место и позволяют отлично отделять гостиную часть.

Посмотреть фото дизайна квартиры студии 25 кв м можно ниже.
Варианты оформления разных зон
Существуют основные правила оформления, которых следует придерживаться для создания интересного и приятного интерьера. Следует придерживаться единого дизайнерского стиля, к примеру: классический, лофт, скандинавский и другие. Зонировать помещение можно различными способами. Для этого используют элементы декора, мебель, разнообразные половые покрытия. Рассмотрим способы оформления каждой из зон.
Рабочее место
Рабочую зону можно организовать в спальной или гостиной. Это делается посредством выдвижной и раскладной мебели
Важно сделать достойное освещение. Чтобы организовать комфортное рабочее пространство, можно расширить подоконник, который станет оригинальным и эргономичным столом
Это поможет получить хорошее освещение благодаря солнечному свету.
Спальное место
Зона для сна должна располагаться как можно дальше от санузла и кухни. Дизайнеры рекомендуют выделять спальное место подиумом, под которым можно оформить дополнительное место для хранения постельного белья или различных мелочей. При выборе кровати можно остановиться на вмонтированной в шкаф модели, которую нужно будет раскладывать лишь на время отдыха. Если помещение является высоким, спальное место следует организовать сверху, используя второй ярус. Дополнительный участок, остающийся под ним, может служить местом для работы или отдыха.
Спальня отделяется от других зон с помощью ширм, балдахинов, декоративных перегородок, текстильных занавесок и сквозных стеллажей.
Гостиная
В зоне отдыха размещают диван-трансформер. Подобная мебель позволяет создать дополнительное место для сна. Иногда допустимо использовать диван в качестве оригинальной перегородки. Телевизор располагается на стене, чтобы сохранить больше свободного пространства. На полу можно постелить мягкий ковер.
Кухня и обеденная зона
Рабочая кухонная зона оснащается функциональным гарнитуром или встроенной мебелью, в которой находится бытовая техника. В небольшой студии следует пользоваться лишь минимальным количеством оборудования, только тем, что необходимо. Полки и выдвижные ящики могут располагаться под расширенным подоконником. С помощью этого можно получить дополнительное место, в которое устанавливают бытовую технику или хранят посуду.
Обеденная зона отделяется от рабочей с помощью барной стойки. Это позволяет создавать большое количество мест для гостей и членов семьи. Кроме того, можно зонировать кухонное помещение перегородками.
С одним окном
Чаще всего одно окно располагается в студиях прямоугольной формы. Они не слишком большие, но даже их можно сделать визуально просторными. В таких помещениях отсутствуют перегородки. Чтобы уютно и эргономично оформить студию, нужно использовать мебель и освещение.
Проход через всю студию должен быть прямым, здесь неуместны какая-либо мебель или другие препятствия. Если используются элементы крупных габаритов, их следует расставлять у одной стены. Последующая планировка должна быть сделана с учетом расположения стояка. В подобных помещениях часто санузел и стояк располагаются возле входа. В таком случае стоит поставить кухонный гарнитур к стене санузла. Использовать лучше П-образные модели с барными стойками.
С двумя окнами
В подобных студиях намного проще создать отдельные зоны, так как они являются просторными и воздушными благодаря поступлению большого количества солнечного света. Окна разделяются с помощью непрозрачных перегородок, что позволяет владельцу помещения получить 2 автономные зоны.
На подоконниках могут находиться бельевые шкафчики небольших размеров, но перед тем, как все оформить, нужно решить вопрос с размещением батарей отопления.
С балконом или лоджией
Если в студии имеются лоджия или же балкон, значит, ее владельцу очень повезло, так как данные элементы способны подарить ему повышенную комфортность проживания. Площадь 28 квадратных метров – небольшая, поэтому каждый лишний метр играет большую роль. Довольно часто балкон может переделываться в жилое помещение и вовсе присоединяться к комнате. Необходимо помнить, что подобные манипуляции достаточно сложны с технической точки зрения.
Из лоджии также можно сделать временную зону отдыха летом. Зимой туда помещают тумбочки и шкафчики, чтобы хранить разнообразные вещи и инструменты. Это позволит «разгрузить» жилую комнату.
Актуальные стили
Уютную квартиру отличает не только грамотно зонированное и функциональное пространство, но и общая стилистика всего помещения. Небольшой метраж не должен сказаться на красоте интерьера, этому поможет правильно выбранное оформление.
Скандинавский стиль
Располагает к себе своей легкостью, простотой и естественностью. Материалы используются преимущественно натуральные – дерево, камень, лен, хлопок. Мебель отличается простотой и функциональностью. Основными цветами этого стиля являются белый, бежевый, светло-серый, голубоватый.
Это не значит, что нужно отказаться от ярких красок, они выступают в качестве акцентов. Контрастные цвета используют в текстиле: пледы, подушки, тканные коврики. Аксессуары тоже могут быть сочных оттенков, главное, их не должно быть много.
Обилие света предполагает использование легких штор или жалюзи. Стены обычно декорированы штукатуркой или окрашены в один тон. Пол покрывают паркетом или ламинатом, имитирующим натуральные светлые породы дерева. Для этого стиля характерна установка разноуровневого освещения.
Хай-тек
Этот стиль как нельзя лучше отражает главный принцип небольшой квартиры – функциональность. В мебели и элементах декора преобладают прямые, четкие линии. Все места для хранения монтируются максимально скрытно. В отделке используют чистые, лаконичные цвета.
Для хай-тека характерно использование раздвижных перегородок. Они изготавливаются из стекла и визуально не скрадывают пространство. Также приветствуется большое количество зеркальных поверхностей, хромированных элементов и металла.
Декора минимум, преимущественно – это черно-белые картины, фотографии. Современная бытовая техника не прячется за кухонными фасадами, а выступает самостоятельным элементом оформления. Удачным решением будет установка большого количества разноуровневого точечного освещения: напольные и настенные лампы, подсветка.
Из-за своей лаконичности и использования промышленных материалов интерьер, выполненный в стиле хай-тек, может оказаться очень холодным и неуютным. По этой причине стоит немного разбавить такой дизайн, добавив элементов из стиля поп-арт или авангард.
Минимализм
Этот стиль считают наиболее удачным при оформлении небольших квартир. Его отличительной чертой является использование лаконичной и функциональной мебели, светлых, спокойных тонов, минимум отделки.
Материалы при таком дизайне должны быть максимально натуральными. На полу используют деревянное покрытие, стены покрывают штукатуркой или однотонными обоями.
Все пространство, а также мебель, должны быть выдержанны в четких геометрических формах: прямоугольник, квадрат, овал. Приветствуются стеклянные и зеркальные перегородки.
Ошибочно считать, что при дизайне 1-комнатной квартиры нужно отказаться от таких уютных, теплых и домашних стилей, как прованс, классика и этно. Просто при оформлении интерьера стоит уменьшить количество декоративных деталей, выбрать спокойные тона как основную цветовую гамму и использовать мебель-трансформер, подходящую к общей атмосфере помещения.
Универсальным можно считать выбор пастельных, светлых тонов. Яркими акцентами стоит выделять отдельные функциональные зоны. Этого можно добиться, окрасив часть стены, или добавив цветной текстиль. Но не стоит забывать, что обилие пледов, декоративных подушек может перегрузить интерьер.
Если кухонных гарнитур встроен в отдельную нишу, выбор ярких глянцевых фасадов станет интересным и оригинальным решением
В случае стандартного расположения лучше не акцентировать на нем внимание, и купить мебель неброских оттенков. В зоне приготовления пищи добавить цвета можно, купив яркую посуду и салфетки под приборы
При оформлении коридора не рекомендуется использовать обои с частым, повторяющемся рисунком
Из-за того, что пространство узкое, от такого декора стен будет рябить в глазах
При оформлении коридора не рекомендуется использовать обои с частым, повторяющемся рисунком. Из-за того, что пространство узкое, от такого декора стен будет рябить в глазах.
В дизайне однокомнатной квартиры цветовые акценты могут выступать как один из способов зонирования пространства.
Зонирование
Чтобы маленькое пространство выглядело уютно и включало все необходимые предметы, квартиру нужно зонировать. Для разделения есть несколько способов:
- ● Низкая перегородка. Вы можете возвести невысокую стену и поставить на нее цветы, свечи или книги. Также ее можно сделать барной стойкой.

Фото жилища с невысокой перегородкой
● Шторы и другой текстиль. Разделить комнаты можно с помощью штор. Они отлично помогают, когда приходят гости или члену семьи необходимо уединение.

Использование шторы для разделения кухни и гостиной
● Изменение отделочных материалов. Например, примените в оформлении кухни светлую плитку, а для зоны отдыха подберите яркие обои или краску.

Разная отделка стен
● Использование мебели для зонирования. У вас есть возможность разделить комнату с помощью открытых шкафов, барной стойки, дивана или тумбы для телевизора. Также можно поставить ширму или этажерку.

Зонирование жилища с помощью стеллажа
● Создание подиумов. Вы можете разместить на возвышение кровать или кухню.

Образец помещения с небольшим подиумом
Фото дизайна интерьеров квартир студий в разных стилях
Как мы уже говорили, в студии можно позволить себе выбрать любой стиль интерьера. Большое пространство позволяет исполнить все требования дизайна. Рассмотрим это на примерах:
Цветовые решения для студии
Прежде чем рассматривать конкретные примеры, стоит остановиться на выборе цветовой гаммы. Владельцам квартир студий в этом плане повезло – есть где разгуляться. Если площадь большая – можно поэкспериментировать и с сочными яркими и темными оттенками. Для небольших площадей больше подходят мягкие пастельные тона. Для зонирования цвет может иметь контрастные сочетания или плавные переходы. Подчеркнуть зону можно перетеканием цвета стена на потолок и пол.
Основные рекомендации по использованию цветовой гаммы:
| Фото | Совет | Практика |
| Используйте один базовый оттенок | Один цвет должны быть основным: его используют для оформления стен и некоторой мебели. Лучше выбирать не яркий, нейтральный оттенок. | |
| Второй цвет должен подчеркивать интерьер | Второй, контрастный цвет или другой оттенок базового будет подчеркивать глубину пространства. Его можно использовать в мебели, текстиле, напольном покрытии. | |
| Третий тон должен быть акцентным | Используйте яркие и насыщенные краски, чтобы подчеркнуть дизайн интерьера. Они могут быть представлены в картинах, ковриках, подушках, абажурах ламп. | |
| Правильное сочетание цветов 6:3:1 | Большая часть – основной базовый оттенок, второе положение занимает оттенок для глубины и акцентные краски – всего 10 процентов. |
Самыми удачными сочетаниями для небольшой студии являются такие варианты:
- светлый кремовый, песочно-бежевый и яркие акценты: оранжевые или красные;
- бледно-голубой, цвет морской волны и акцент на синий или ярко-зеленый;
- Песочный, шоколадный и акцент на розовый или ярко-желтый.
На фото примеры того, как выглядят квартиры студии с отделкой в разных цветовых сочетаниях:
Статья по теме:
Специфика освещения зонированного пространства
Световой проект для квартиры студии должен быть особенным. Мало просто повесить центральную люстру. Более того, как раз в этом случае можно обойтись совсем без центрального светильника, предусмотрев для каждой зоны собственный световой сценарий.
Не стремитесь максимально осветить все уголки помещения: излишняя иллюминация быстро утомляет и раздражающе действует на психику
Основные рекомендации по расставке приборов освещения в студии:
- На месте для отдыха и у обеденного стола установите торшеры на длинной ноге или подвесные люстры.
- В зоне спальни разместите бра, точечные источники освещения или пару настольных ламп. Все эти источники дают мягкое комфортное освещение.
- В местах размещения перегородок установите дополнительные источники света, они понадобятся и в зоне модульной мебели.
- Письменный стол оснастите мощной настольной лампой на регулируемой ножке.
- В кухне используйте рабочее освещение под шкафчиками.
Не пытайтесь установить как можно больше осветительных приборов, продумайте их необходимость в каждом конкретном случае.
Фото санузлов
В студии, ванная и туалет являются единственными обособленными комнатами. Санузел несмотря на свою отделенность, должен сочетаться с общим интерьером всей квартиры, а также отличаться максимальной функциональностью.

На фото вид сверху на санузел, размещенный в квартире-студии 30 кв м.
Для экономии пространства санузел оборудуют угловыми умывальниками, душевыми кабинами, занимающими минимум количества площади, а также оснащают другой компактной сантехникой и мебелью. В визуальном увеличении комнаты помогают светлые оттенки в облицовке и грамотно подобранное освещение.





































